Bénéficiez des services de nos partenaires locaux soigneusement sélectionnés
pour vous accompagner dans votre parcours d'achat immobilier

Appartement 51m² à cagnes-sur-mer

— Cagnes-Sur-Mer 06800 —
292 000 €
51 m²
2 pièces

Nos partenaires locaux
Iad France - James LEFEBVRE ([Coordonnées masquées]) vous propose : Appartement T2 à Cagnes sur Mer - Coeur d'Azur

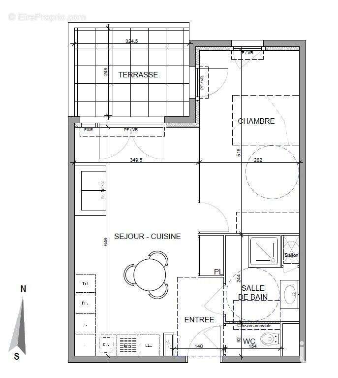
Découvrez ce magnifique appartement de type T2 situé au cOEur d'une résidence moderne et sécurisée à Cagnes sur Mer. Idéalement situé à l'adresse Coeur d'Azur, Avenue Maurice Donat, cet appartement au troisième étage, numéroté A305, offre un cadre de vie exceptionnel.

Caractéristiques principales :
Séjour-Cuisine : Un espace lumineux et spacieux de 27,72 m² environ, parfait pour vos moments en famille ou entre amis.

Entrée : Une entrée accueillante de 3,11 m² environ.

Chambre : Une chambre confortable de 14,55 m² environ.

Salle de bains : Une salle de bains moderne de 4,60 m² environ.

WC : Des toilettes séparées de 1,42 m² environ.

Terrasse : Une superbe terrasse de 8,11 m² environ pour profiter du soleil et des vues dégagées.

Superficie :
Surface habitable totale : 51,40 m² environ

Surface de la terrasse : 8,11 m² environ

Équipements inclus :
Fenêtres et portes-fenêtres avec volets roulants (VR).

Ballon thermodynamique pour une gestion efficace de l'eau chaude.

Espaces prévus pour lave-linge (L. L) et lave-vaisselle (L. V).

Plaque de cuisson (C.), réfrigérateur (Fr.), évier (Ev.) et placards (Pl.) intégrés.

Cet appartement est une véritable perle rare, offrant des espaces bien agencés et des équipements modernes. Ne manquez pas cette opportunité unique de vivre dans un cadre privilégié, proche de toutes les commodités et des transports en commun.

Pour plus d'informations ou pour organiser une visite, veuillez contacter notre équipe dès aujourd'hui.

Honoraires d'agence à la charge du vendeur. Bien non soumis au DPE. Les informations sur les risques auxquels ce bien est exposé sont disponibles sur le site Géorisques : www.georisques.gouv.fr. La présente annonce immobilière a été rédigée sous la responsabilité éditoriale de M. James LEFEBVRE EI (ID 44101), mandataire indépendant en immobilier (sans détention de fonds), agent commercial de la SAS I@D France immatriculé au RSAC de GRASSE sous le numéro 881938955, titulaire de la carte de démarchage immobilier pour le compte de la société I@D France SAS.
Retrouvez tous nos biens sur notre site internet. www.iadfrance.fr.
Informations LOI ALUR :
Honoraires charge vendeur. (gedeon_6727_30636583)
Voir plus

Référence: 1633488-25
Honoraires à la charge du vendeur.

Prêt immobilier

Vous souhaitez connaître votre capacité d’emprunt et trouver le meilleur crédit immobilier ?
Réaliser une simulation gratuite

Photo 1 - Appartement à CAGNES-SUR-MER
Photo 1
Photo 2 - Appartement à CAGNES-SUR-MER
Photo 2
Photo 3 - Appartement à CAGNES-SUR-MER
Photo 3
Photo 4 - Appartement à CAGNES-SUR-MER
Photo 4
Photo 5 - Appartement à CAGNES-SUR-MER
Photo 5
Photo 6 - Appartement à CAGNES-SUR-MER
Photo 6
Photo 7 - Appartement à CAGNES-SUR-MER
Photo 7
Photo 8 - Appartement à CAGNES-SUR-MER
Photo 8
Ce site est protégé par reCAPTCHA la Politique de confidentialité et les Conditions d’utilisation de Google s’appliquent.
Obtenir un prêt immobilier au meilleur taux ?

En poursuivant votre navigation sans modifier vos paramètres, vous acceptez l'utilisation de cookies susceptibles de réaliser des statistiques de visite. Cliquez ici pour plus d'informations