Bénéficiez des services de nos partenaires locaux soigneusement sélectionnés
pour vous accompagner dans votre parcours d'achat immobilier

Appartement 145m² à toulouse

— Toulouse 31000 —
660 000 €
145 m²
6 pièces

Nos partenaires locaux
À deux pas de toutes les commodités, dans un bel immeuble du XIXe siècle sans ascenseur, venez découvrir ce duplex de caractère occupant les deux derniers étages d'une petite copropriété de sept logements. Une adresse confidentielle, au calme, proche des commerces, du marché, des transports, des établissements scolaires et de la gare.

Ce bien rare développe 145 m² en loi Carrez (182 m² au sol), et offre un extérieur exceptionnel en coeur de ville : au deuxième niveau, une superbe terrasse intime, sans aucun vis-à-vis, dévoile une vue panoramique sur les toits de Toulouse. À cela s'ajoute un balcon côté cuisine pour prolonger les moments de convivialité dès les beaux jours.

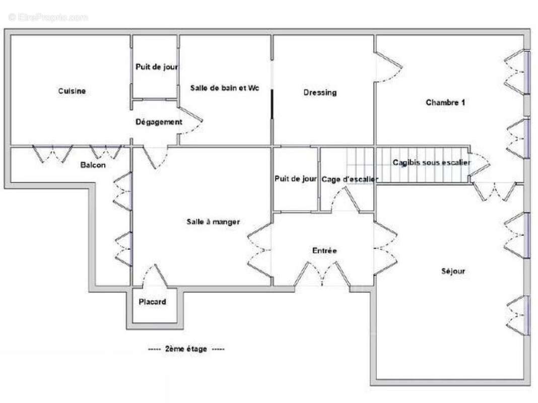
Le premier niveau comprend une entrée, une salle à manger, une cuisine indépendante avec accès balcon, une chambre spacieuse, un dressing, une salle de bain et un vaste séjour sublimé par le charme de l'ancien : cheminées, moulures, parquets et belle hauteur sous plafond. L'étage supérieur, accessible par un escalier intérieur, offre une seconde pièce de vie lumineuse, deux chambres, une salle d'eau, un coin cuisine et l'accès direct à la terrasse.

Deux caves en sous-sol viennent compléter ce bien aux volumes généreux, idéal pour une vie citadine élégante et confortable. Un lieu rare, au calme, lumineux, et chargé de cachet. Visite indispensable.

Le bien comprend 4 lots, et il est situé dans une copropriété de 20 lots (les charges courantes annuelles moyennes de copropriété sont de 2000 ¤ et le syndicat des copropriétaires ne fait pas l'objet d'une procédure citée à l'article L. 721-1 du code de la construction et de l'habitation).

Les informations sur les risques auxquels ce bien est exposé sont disponibles sur le site Géorisques : www.georisques.gouv.fr
Prix de vente : 660 000 ¤
Honoraires charge vendeur

Contactez votre conseiller SAFTI : Karine SAMATAN, Tél. : [Coordonnées masquées], E-mail : [Coordonnées masquées] - EI - Agent commercial immatriculé au RSAC de TOULOUSE sous le numéro 889 604 948.
Informations LOI ALUR :
Soumis au régime de copropriété.
Nombre de lots : 20.
Quote part annuelle(moyenne) : 2000 euros.
Honoraires charge vendeur. (gedeon_26118_31474621)
Voir plus

Référence: 1493751
Bien en copropriété. Nombre de lots : 20. Charges de copropriété : 2000 €.
Honoraires à la charge du vendeur.
Barème des honoraires
DPE
A
B
C
D
E
F
G
GES
A
B
C
D
E
F
G

Prêt immobilier

Vous souhaitez connaître votre capacité d’emprunt et trouver le meilleur crédit immobilier ?
Réaliser une simulation gratuite

Photo 1 - Appartement à TOULOUSE
Photo 1
Photo 2 - Appartement à TOULOUSE
Photo 2
Photo 3 - Appartement à TOULOUSE
Photo 3
Photo 4 - Appartement à TOULOUSE
Photo 4
Photo 5 - Appartement à TOULOUSE
Photo 5
Photo 6 - Appartement à TOULOUSE
Photo 6
Photo 7 - Appartement à TOULOUSE
Photo 7
Photo 8 - Appartement à TOULOUSE
Photo 8
Photo 9 - Appartement à TOULOUSE
Photo 9
Ce site est protégé par reCAPTCHA la Politique de confidentialité et les Conditions d’utilisation de Google s’appliquent.
Obtenir un prêt immobilier au meilleur taux ?

En poursuivant votre navigation sans modifier vos paramètres, vous acceptez l'utilisation de cookies susceptibles de réaliser des statistiques de visite. Cliquez ici pour plus d'informations