Bénéficiez des services de nos partenaires locaux soigneusement sélectionnés
pour vous accompagner dans votre parcours d'achat immobilier

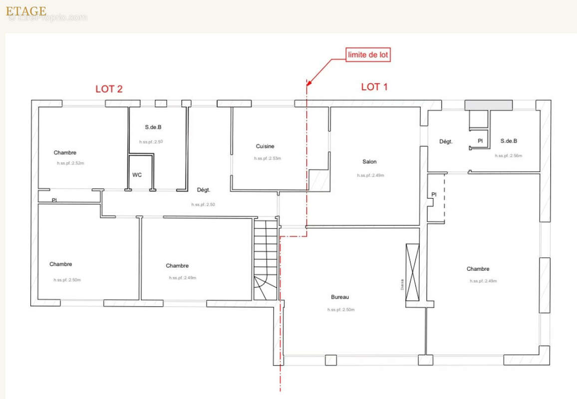
Maison 115m2 hors d'eau hors d'air a aménager - terrain 270m2

— La Valette-Du-Var 83160 —
310 000 €
115 m² / 270 m²
6 pièces
parkingjardin

Nos partenaires locaux
La Valette-du-Var Quartier de La Coupiane
Au coeur de ce secteur recherché qui bénéficie de toutes les commodités: garderie, école, collège, cinéma, commerces , services publics et municipaux, transports en commun..
A proximité immédiate du centre-ville et de l'Avenue 83.
A 5mns de l'hopital St Musse et des accés autoroutiers.
Découvrez ce lot de 115 m2 à rénover et aménager selon vos envies.
Ce bien offre un fort potentiel d’aménagement, que ce soit pour une résidence principale spacieuse ou pour un projet professionnel (bureaux, locaux, profession libérale). Le bien se situe dans une future copropriété de deux lots uniquement, garantissant des charges très faibles.
Caractéristiques principales :

Surface habitable : 115 m2
Volumes bruts à redistribuer : possibilité de créer jusqu’à 7 pièces
Jardin privatif et exclusif de 180 m2
Double accès :

côté rue pour les piétons (accès direct centre-ville)
côté stationnement pour les véhicules

Stationnement privatif sur la parcelle
Mitoyenneté d’un seul côté
Parcelle privative : 270 m2 au total
Copropriété de deux lots uniquement (faibles charges à prévoir)

Idéal pour un projet de rénovation à fort potentiel, que ce soit pour une famille ou pour un usage mixte résidentiel / professionnel.
Voir plus

Référence: 1473
Bien en copropriété. Nombre de lots : 2.
Honoraires d'agence de 5.08% à la charge de l'acquéreur
Barème des honoraires
DPE
A
B
C
D
E
F
G
GES
A
B
C
D
E
F
G

Prêt immobilier

Vous souhaitez connaître votre capacité d’emprunt et trouver le meilleur crédit immobilier ?
Réaliser une simulation gratuite

Maison à LA VALETTE-DU-VAR
Maison à LA VALETTE-DU-VAR
Maison à LA VALETTE-DU-VAR
Maison à LA VALETTE-DU-VAR
Maison à LA VALETTE-DU-VAR
Maison à LA VALETTE-DU-VAR
Maison à LA VALETTE-DU-VAR
Maison à LA VALETTE-DU-VAR
Ce site est protégé par reCAPTCHA la Politique de confidentialité et les Conditions d’utilisation de Google s’appliquent.
Obtenir un prêt immobilier au meilleur taux ?

En poursuivant votre navigation sans modifier vos paramètres, vous acceptez l'utilisation de cookies susceptibles de réaliser des statistiques de visite. Cliquez ici pour plus d'informations