Bénéficiez des services de nos partenaires locaux soigneusement sélectionnés
pour vous accompagner dans votre parcours d'achat immobilier

Caen rive droite appartement t3 a vendre loue avec cave

— Caen 14000 —
125 000 €
51 m²
3 pièces
balcon/terrasse

Nos partenaires locaux
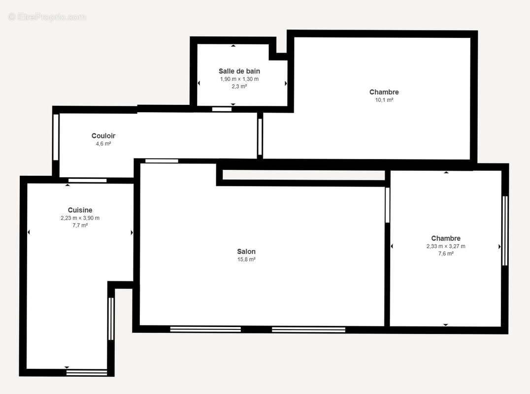
CAEN RIVE DROITE - Quartier Sainte-Thérèse/Demi-Lune, un appartement à vendre loué de 3 pièces principales de 50.58m2 comprenant une entrée avec placards, un séjour, une cuisine indépendante amnénagée, une salle de douches, un WC indépendant, une chambre donnant sur un balcon et un bureau.
Une cave en sous-sol complète ce bien.
Appartement actuellement loué 505€ hc.
Consommation d'énergie : F (368kwh/an/m2), Gaz à effet de serre : F.

Montant estimé des dépenses annuelles d'énergie: entre 2142€ et 2898€. Estimation réalisée à partir des prix énergétiques de référence des années 2021, 2022 et 2023.
Quote part annuelle de charges exercice 01/01/2024 au 31/12/2024: 1792.21€

Prix du bien : 125 000€, honoraires à la charge du vendeur.
La visite virtuelle est disponible sur notre site internet www.cabinetquesnee.com.
Les informations sur les risques auxquels ce bien est exposé sont disponibles sur le site georisques.gouv.fr.
Cabinet QUESNEE [Coordonnées masquées]/[Coordonnées masquées]
Voir plus

Référence: 607
Bien en copropriété. Nombre de lots : 78. Charges de copropriété : 1792 €.
Honoraires à la charge du vendeur.
Barème des honoraires
DPE
A
B
C
D
E
F
G
GES
A
B
C
D
E
F
G

Prêt immobilier

Vous souhaitez connaître votre capacité d’emprunt et trouver le meilleur crédit immobilier ?
Réaliser une simulation gratuite

Appartement à CAEN
Appartement à CAEN
Appartement à CAEN
Appartement à CAEN
Appartement à CAEN
Appartement à CAEN
Ce site est protégé par reCAPTCHA la Politique de confidentialité et les Conditions d’utilisation de Google s’appliquent.
Obtenir un prêt immobilier au meilleur taux ?

En poursuivant votre navigation sans modifier vos paramètres, vous acceptez l'utilisation de cookies susceptibles de réaliser des statistiques de visite. Cliquez ici pour plus d'informations