Maison 167m2 à rénover chantilly centre

— Chantilly 60500 —
535 000 €
167 m² / 400 m²
6 pièces
parkingbalcon/terrassejardin

Rare à la vente!
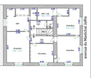
Venez découvrir cette jolie maison en pierre de 167m2 à rénover entièrement située en plein centre ville de Chantilly, à 2 pas de la gare!
Sur un terrain d'environ 400m2, elle dispose au RDC d'un vaste salon /salle à manger, une cuisine, un WC et un accès au garage.
Au premier étage, vous trouverez 4 chambres, 2 salles de bain/douche, 2 WC.
Au dernier étage les combles ont été aménagées et vous offre un bel espace supplémentaire.
Un joli jardin complète ce bien.
N'hésitez pas à contacter votre conseillere en immobilier Cindy HIVERT au [Coordonnées masquées] pour venir la visiter!
Voir plus

Bien en copropriété. Nombre de lots : 48.
Honoraires à la charge du vendeur.
Barème des honoraires

Prêt immobilier

Vous souhaitez connaître votre capacité d’emprunt et trouver le meilleur crédit immobilier ?
Réaliser une simulation gratuite

Maison à CHANTILLY
Maison à CHANTILLY
Maison à CHANTILLY
Maison à CHANTILLY
Maison à CHANTILLY
Ce site est protégé par reCAPTCHA la Politique de confidentialité et les Conditions d’utilisation de Google s’appliquent.
Obtenir un prêt immobilier au meilleur taux ?

En poursuivant votre navigation sans modifier vos paramètres, vous acceptez l'utilisation de cookies susceptibles de réaliser des statistiques de visite. Cliquez ici pour plus d'informations