Bénéficiez des services de nos partenaires locaux soigneusement sélectionnés
pour vous accompagner dans votre parcours d'achat immobilier

Appartement et bureaux d'exceptions - 300m2 - parc monceau - boulevard malesherbes, paris 8e

— Paris-8e 75008 —
4 650 000 €
300 m²
7 pièces
balcon/terrasseascenseur

Nos partenaires locaux
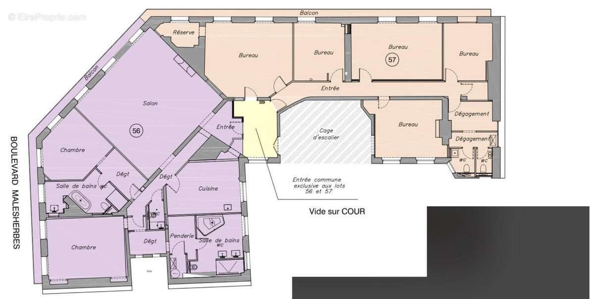
Découvrez cet appartement d'exception situé sur le prestigieux boulevard Malesherbes, au cœur du 8e arrondissement de Paris. Au sein d'un immeuble haussmannien de grand standing construit en 1890, ce bien rare de 300 m² entièrement rénové séduit par ses volumes remarquables, son balcon filant, sa hauteur sous plafond et la qualité de ses prestations.

L'appartement, situé au 4e étage avec ascenseur, s'organise en deux ailes distinctes offrant de multiples possibilités d'usage : une aile privée d'environ 150 m² pour la vie familiale et une aile professionnelle d'environ 150 m² adaptée à une activité libérale ou à des bureaux haut de gamme.

La partie privée s'ouvre sur une entrée majestueuse qui mène à une vaste pièce de réception avec cheminée fonctionnelle, attenante à une salle à manger et à une cuisine séparée entièrement équipée. L'espace nuit propose deux suites luxueuses, chacune dotée de sa salle de bain complète et de dressings. Le confort est assuré par un système intégré de climatisation à eau et un chauffage individuel au sol.

L'aile professionnelle comprend une salle de réunion et quatre grands espaces modulables, parfaits pour un cabinet d'avocats, une activité libérale ou des bureaux de direction. Elle dispose également de deux WC séparés et peut être réunie à l'aile principale selon les besoins.

Ce bien comprend également trois caves. La copropriété est bien entretenue, dispose d'une gardienne et ne nécessite aucun travaux. Les charges s'élèvent à environ 2 300 € par trimestre et la taxe foncière à 5 459 € par an. L'usage professionnel est autorisé.

Situé dans l'un des quartiers les plus recherchés de Paris, à proximité immédiate du parc Monceau, des commerces de luxe, des écoles prestigieuses et des stations de métro Villiers, Miromesnil et Saint-Lazare, cet appartement offre un cadre de vie unique alliant élégance et fonctionnalité.

Prix : 4 900 000 € FAI (commission charge acquéreur Hosman 2 % incluse).

Si vous êtes un professionnel de l'immobilier, sachez que toutes les annonces Hosman sont ouvertes à la collaboration. N'hésitez pas à nous contacter pour en discuter.
Voir plus

Référence: bd789e
Bien en copropriété. Charges de copropriété : 766 €.

Prêt immobilier

Vous souhaitez connaître votre capacité d’emprunt et trouver le meilleur crédit immobilier ?
Réaliser une simulation gratuite

Appartement à PARIS-8E
Appartement à PARIS-8E
Appartement à PARIS-8E
Ce site est protégé par reCAPTCHA la Politique de confidentialité et les Conditions d’utilisation de Google s’appliquent.
Obtenir un prêt immobilier au meilleur taux ?

En poursuivant votre navigation sans modifier vos paramètres, vous acceptez l'utilisation de cookies susceptibles de réaliser des statistiques de visite. Cliquez ici pour plus d'informations