Bénéficiez des services de nos partenaires locaux soigneusement sélectionnés
pour vous accompagner dans votre parcours d'achat immobilier

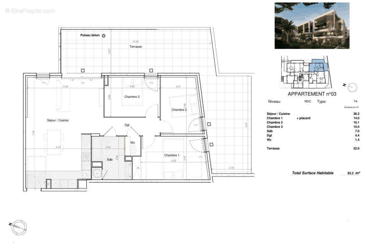
T4 de plus de 83 m², avec terrasse d'angle de 52 m² exposée sud-est, proche espace brassens

— Sete 34200 —
414 900 €
83 m²
4 pièces
parkingbalcon/terrasseascenseur

Nos partenaires locaux
Vivez au coeur d'un environnement boisé dans un appartement avec grande terrasse. Situé dans une résidence paisible, ce T4 de plus de 83 m² offre un cadre de vie calme et agréable, tout en restant proche des commerces, écoles et transports accessibles à pied.
Séjour lumineux avec cuisine ouverte, donnant sur une terrasse d'angle plein Sud Est de 52 m² : un véritable espace de vie extérieur pour recevoir, se détendre ou déjeuner au soleil. Trois chambres spacieuses, une salle de bain moderne et des prestations soignées.
Place de parking en sous-sol pour plus de confort et de sécurité.
A seulement quelques minutes des plages, des lignes de bus, des commerces et de toutes les commodités du quotidien. Un parfait équilibre entre nature, praticité et qualité de vie Sétoise.
Un emplacement recherché :
A seulement quelques minutes des plages et du centre-ville, ce logement allie nature, praticité et qualité de vie dans un quartier dynamique mais préservé.
Prix : 414 900 euros (honoraires à la charge du vendeur) DPE en cours.
Pour visiter et vous accompagner dans votre projet, contactez Michel HORNECKER, au [Coordonnées masquées] ou, par courriel à [Coordonnées masquées].
Selon l'article L.561.5 du Code Monétaire et Financier, pour l'organisation de la visite, la présentation d'une pièce d'identité vous sera demandée.
Cette présente annonce a été rédigée sous la responsabilité éditoriale de Michel HORNECKER agissant sous le statut d'agent commercial immatriculé au RSAC BEZIERS 493044283 auprès de SAS PROPRIETES PRIVEES, au capital de 44 920 euros, ZAC LE CHÊNE FERRÉ - 44 ALLÉE DES CINQ CONTINENTS 44120 VERTOU; SIRET 487 624 777 00040, RCS Nantes. Carte Professionnelle Transactions sur immeubles et fonds de commerce (T) et Gestion immobilière (G) n°CPI 44[Coordonnées masquées]10 388 délivrée par la CCI Nantes - Saint Nazaire. Compte séquestre n°3[Coordonnées masquées] BPA SAINT-SEBASTIEN-SUR-LOIRE (44230). Garantie GALIAN-SMABTP - 89 rue de la Boétie, 75008 Paris - n°28137 J pour 2 000 000 euros pour T et 120 000 euros pour G. Assurance responsabilité civile professionnelle par GALIAN-SMABTP n° de police 28137.J
Mandat réf : 432286 Le professionnel garantit et sécurise votre projet immobilier.
Copropriété de 34 lots - dont 24 lots habitation. ().

Charges annuelles : 1300 euros.
Michel HORNECKER (EI) Agent Commercial - Numéro RSAC : BEZIERS 493044283 - .
Voir plus

Référence: 432286HKM
Bien en copropriété. Nombre de lots : 34. Charges de copropriété : 108 €.
Honoraires à la charge du vendeur.

Prêt immobilier

Vous souhaitez connaître votre capacité d’emprunt et trouver le meilleur crédit immobilier ?
Réaliser une simulation gratuite

Appartement à SETE
Appartement à SETE
Appartement à SETE
Appartement à SETE
Appartement à SETE
Ce site est protégé par reCAPTCHA la Politique de confidentialité et les Conditions d’utilisation de Google s’appliquent.
Obtenir un prêt immobilier au meilleur taux ?

En poursuivant votre navigation sans modifier vos paramètres, vous acceptez l'utilisation de cookies susceptibles de réaliser des statistiques de visite. Cliquez ici pour plus d'informations