Bénéficiez des services de nos partenaires locaux soigneusement sélectionnés
pour vous accompagner dans votre parcours d'achat immobilier

Duplex avec vue et terrasse à saint-julien

— Marseille-12e 13012 —
399 000 €
111 m²
3 pièces
balcon/terrasse

Nos partenaires locaux
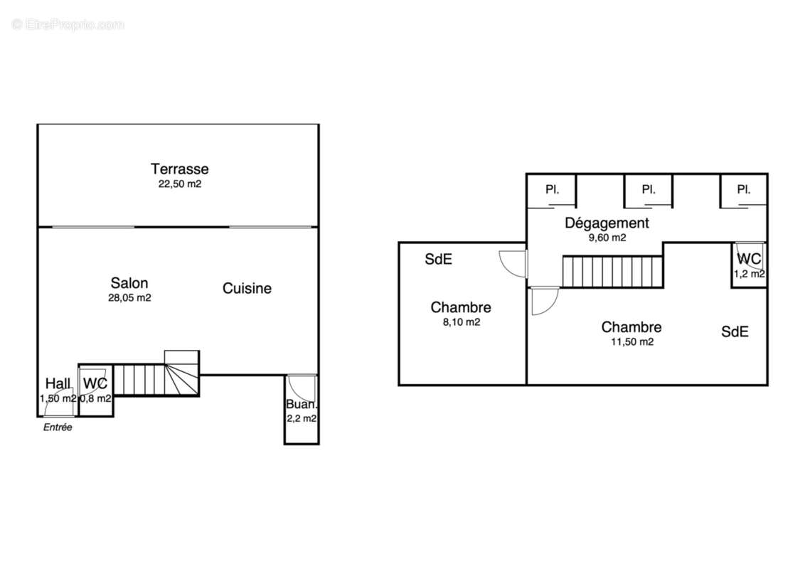
Le Café de l'immo vous emmène à deux pas des commerces et des écoles de Saint-Julien et de Beaumont, visiter cet appartement en duplex de 111m2 habitables (63m2 Carrez), qui occupe les deux derniers étages d’une résidence sécurisée et bien tenue avec ascenseur. Ici, la lumière est omniprésente, et la vue dégagée sur la ville et les collines apporte une sensation d’espace et d'évasion.
 
Dès l’entrée, la grande pièce de vie séduit par ses volumes et son exposition plein sud. Espace salon, cuisine moderne ouverte et toute équipée, cet espace convivial a été pensé pour se réunir. De larges baies vitrées ouvrent sur une terrasse de 23m2, véritable prolongement de l'espace de vie, où l’on imagine facilement les petits déjeuners au soleil et les soirées d’été, au calme et sans aucun vis-à-vis.
 
Un escalier mène à l’étage supérieur, entièrement aménagé sous les toits. Deux grandes chambres s’y partagent l’espace : la première, baignée de lumière grâce à ses velux, offre 33m2 au sol et dispose de sa propre salle d’eau. La seconde, pensée comme une suite avec douche et lavabo, déploie 21m2 au sol. Sous les mansardes, un espace bureau et de nombreux rangements viennent parfaire ce niveau. Deux WC séparés complètent l’ensemble.
 
Un box voiture simple est proposé en sus au niveau zéro de la résidence pour 25.000€.
Un autre box moto est aussi proposé en sus pour 15.000€.
 
Un appartement rare, pensé comme une maison, où le calme, la lumière et la douceur de vivre se rencontrent dans un cadre privilégié. À visiter sans tarder !
 
 
Taxe Foncière : 1 705€
Charges mensuelles : 90€
Voir plus

Référence: 1470
Bien en copropriété. Charges de copropriété : 1092 €.
Honoraires à la charge du vendeur.
Barème des honoraires
DPE
A
B
C
D
E
F
G
GES
A
B
C
D
E
F
G

Prêt immobilier

Vous souhaitez connaître votre capacité d’emprunt et trouver le meilleur crédit immobilier ?
Réaliser une simulation gratuite

Appartement à MARSEILLE-12E
Appartement à MARSEILLE-12E
Appartement à MARSEILLE-12E
Appartement à MARSEILLE-12E
Appartement à MARSEILLE-12E
Appartement à MARSEILLE-12E
Appartement à MARSEILLE-12E
Appartement à MARSEILLE-12E
Appartement à MARSEILLE-12E
Appartement à MARSEILLE-12E
Appartement à MARSEILLE-12E
Appartement à MARSEILLE-12E
Appartement à MARSEILLE-12E
Appartement à MARSEILLE-12E
Appartement à MARSEILLE-12E
Appartement à MARSEILLE-12E
Appartement à MARSEILLE-12E
Appartement à MARSEILLE-12E
Appartement à MARSEILLE-12E
Appartement à MARSEILLE-12E
Ce site est protégé par reCAPTCHA la Politique de confidentialité et les Conditions d’utilisation de Google s’appliquent.
Obtenir un prêt immobilier au meilleur taux ?

En poursuivant votre navigation sans modifier vos paramètres, vous acceptez l'utilisation de cookies susceptibles de réaliser des statistiques de visite. Cliquez ici pour plus d'informations