Bénéficiez des services de nos partenaires locaux soigneusement sélectionnés
pour vous accompagner dans votre parcours d'achat immobilier

Nantes superbe t5 duplex en dernier étage avec vue dégagée

— Nantes 44300 —
374 000 €
113 m²
5 pièces
parkingbalcon/terrasse

Nos partenaires locaux
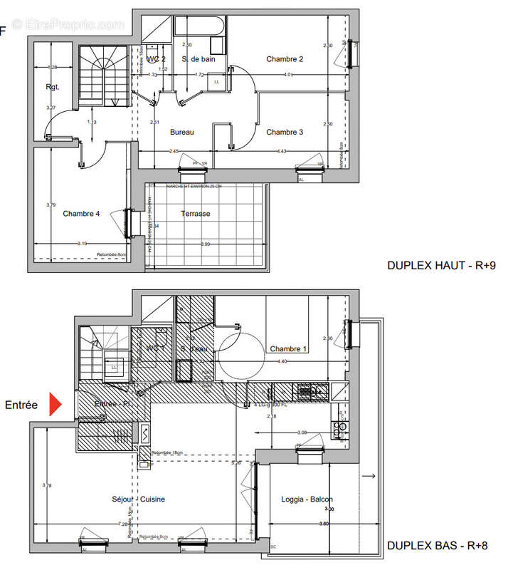
Le cabinet Cobalt Immobilier vous propose ce superbe appartement T5 duplex au dernier étage d'une résidence neuve à Nantes, livraison prévue au 1er trimestre 2026. Ce bien rare propose au premier niveau une vie de plain-pied avec un grand salon-séjour-cuisine de plus de 35 m2 donnant sur une terrasse avec vue exceptionnelle sur la nature, une suite parentale avec salle d’eau privative, un WC séparé, un espace buanderie et de grands placards. À l’étage, vous trouverez trois belles chambres, un coin bureau, une salle de bain ainsi qu’une seconde terrasse bénéficiant d’une vue panoramique dégagée. Situé au cœur d’un quartier verdoyant, proche des commerces, écoles et transports, ce logement offre un cadre de vie exceptionnel. Résidence écoresponsable (matériaux biosourcés, toitures végétalisées, RE2020). Frais de notaire réduits. Visite possible dès à présent. Opportunité rare à Nantes, contactez-nous pour plus d’informations. Monsieur Sébastien CARTON - [Coordonnées masquées].
Réf : SC 386-7-D Et pour plus d’exclusivités en avant première, abonnez-vous à @cobaltimmobilier sur Instagram et Facebook !
Voir plus

Honoraires à la charge du vendeur.
Barème des honoraires

Prêt immobilier

Vous souhaitez connaître votre capacité d’emprunt et trouver le meilleur crédit immobilier ?
Réaliser une simulation gratuite

Appartement à NANTES
Appartement à NANTES
Appartement à NANTES
Appartement à NANTES
Ce site est protégé par reCAPTCHA la Politique de confidentialité et les Conditions d’utilisation de Google s’appliquent.
Obtenir un prêt immobilier au meilleur taux ?

En poursuivant votre navigation sans modifier vos paramètres, vous acceptez l'utilisation de cookies susceptibles de réaliser des statistiques de visite. Cliquez ici pour plus d'informations