Bénéficiez des services de nos partenaires locaux soigneusement sélectionnés
pour vous accompagner dans votre parcours d'achat immobilier

Appartement

— Colombes 92700 —
690 000 €
117 m²
4 pièces
parkingbalcon/terrasseascenseur

Nos partenaires locaux
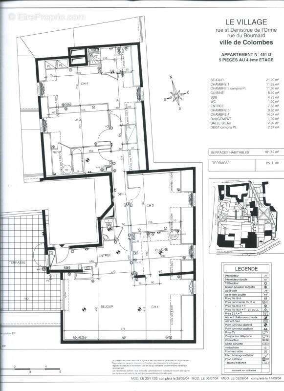
92700 – COLOMBES – HYPER CENTRE “LE VILLAGE” – DERNIER ÉTAGE AVEC ASCENSEUR
4 PIÈCES – 3 CHAMBRES – 103 m² – TERRASSE 25 m² – RÉNOVATION 2022 – PARKING BOXÉ (en sus)

Benjamin ALAMEDA vous présente ce superbe appartement familial, idéalement situé en plein cœur de Colombes, à quelques pas des écoles, commerces et transports.
Un cadre de vie rare pour une famille
Au sein du très recherché quartier Le Village, découvrez un 4 pièces entièrement rénové en 2022 avec des matériaux de qualité.
Un appartement clé en main, prêt à accueillir votre quotidien : volumes généreux, circulation fluide, double exposition Est/Ouest et une atmosphère paisible malgré son emplacement hyper central.
Des espaces lumineux, modernes et parfaitement agencés

Avec ses 103 m², l'appartement offre :

- Un séjour de 36 m², idéal pour les moments de vie partagés,
- Trois grandes chambres de 13 m², 17 m² et 13 m², parfaites pour enfants, télétravail ou suite parentale,
- Une cuisine équipée moderne, fonctionnelle et conviviale,
- Et surtout… une terrasse plein ciel de 25 m², véritable extension de l'espace de vie : repas, détente, jeux… un luxe en hyper centre sans vis à vis.

Le confort d'un dernier étage

Au 4ᵉ et dernier étage avec ascenseur, profitez d'une lumière exceptionnelle, d'une vue dégagée et d'un calme absolu.
La copropriété est bien entretenue, avec une façade en bon état.

Les atouts qui font la différence :
- Rénovation complète et qualitative (2022)
- Grande terrasse plein ciel
- Exposition Est/Ouest
- Parking boxé (en supplément) + cave de 4 m²
- Immeuble entretenu
- Emplacement premium : écoles, commerces et transports à 2 minutes

Un bien familial rare sur le marché

Si vous recherchez un appartement lumineux, calme, pratique au quotidien et situé dans l'un des meilleurs secteurs de Colombes, ce bien coche toutes les cases.

Contactez-moi pour organiser une visite et découvrir votre prochain chez-vous.

Benjamin ALAMEDA [Coordonnées masquées]
Mes différents réseaux : https://linktr.ee/Benjaminalameda?utm_source=linktree_profile_share<sid=95135149-da52-4adb-8bf0-988a4e95bfdd
Les informations sur les risques auxquels ce bien est exposé sont disponibles sur le site Georisque : georisques. gouv. fr
Benjamin Alameda - EI - est Agent Commercial mandataire en immobilier, immatriculé au Registre Spécial des Agents Commerciaux du Tribunal de Commerce de Nanterre sous le n°921806592.
Siège social du mandant : effiCity, 48 avenue de Villiers - 75017 PARIS - Société par Actions Simplifiée, société au capital de 132 373,05 euros, immatriculée au RCS Paris 497 617 746 et titulaire de la Carte professionnelle CPI 75[Coordonnées masquées]02 025 - CCI Paris IDF - Caisse de Garantie : GALIAN Assurances 89 rue de la Boétie 75008 Paris
Voir plus

Référence: 201176
Bien en copropriété. Nombre de lots : 66. Charges de copropriété : 300 €.
Honoraires d'agence de 4.17% à la charge de l'acquéreur
Barème des honoraires
DPE
A
B
C
D
E
F
G
GES
A
B
C
D
E
F
G

Prêt immobilier

Vous souhaitez connaître votre capacité d’emprunt et trouver le meilleur crédit immobilier ?
Réaliser une simulation gratuite

Appartement à COLOMBES
Appartement à COLOMBES
Appartement à COLOMBES
Appartement à COLOMBES
Appartement à COLOMBES
Appartement à COLOMBES
Appartement à COLOMBES
Appartement à COLOMBES
Appartement à COLOMBES
Appartement à COLOMBES
Ce site est protégé par reCAPTCHA la Politique de confidentialité et les Conditions d’utilisation de Google s’appliquent.
Obtenir un prêt immobilier au meilleur taux ?

En poursuivant votre navigation sans modifier vos paramètres, vous acceptez l'utilisation de cookies susceptibles de réaliser des statistiques de visite. Cliquez ici pour plus d'informations