Exclusivite nimes le polygone local 73m2 stationnements ascenseur

— Nimes 30900 —
129 000 €
73 m²
2 pièces

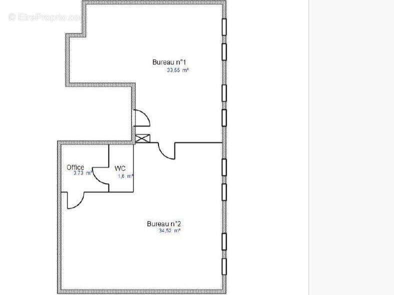
EXCLUSIVITE NIMES LE POLYGONE LOCAL 73M2 STATIONNEMENTS ASCENSEUR. Situé das la résidence LE POLYGONEsur l'avenue Maréchal Juin, en zone franche, avec ascenseur, il s'agit d'un local à usgae de bureaux d'une superficie de 73,4 m2 LC. Il se compose de deux pièces, un coin cuisine, wc. Place de parkings dans la résidence. Bien soumis au statut juridique de la copropiété. Nombre de lots : 28. Charges annuelles de copropriété (montant moyen annuel quote-part du budget prévisionnel vendeur): 900 €. Procédure en cours : néant. Honoraires charge vendeur. Les informations sur les risques auxquels ce bien est exposé sont disponibles sur le site Géorisques : www.georisques.gouv.fr.
Voir plus

Référence: 4829
Honoraires à la charge du vendeur.
Barème des honoraires
DPE
A
B
C
D
E
F
G
GES
A
B
C
D
E
F
G

Prêt immobilier

Vous souhaitez connaître votre capacité d’emprunt et trouver le meilleur crédit immobilier ?
Réaliser une simulation gratuite

Commerce à NIMES
Commerce à NIMES
Commerce à NIMES
Commerce à NIMES
Commerce à NIMES
Commerce à NIMES
Commerce à NIMES
Commerce à NIMES
Ce site est protégé par reCAPTCHA la Politique de confidentialité et les Conditions d’utilisation de Google s’appliquent.
Obtenir un prêt immobilier au meilleur taux ?

En poursuivant votre navigation sans modifier vos paramètres, vous acceptez l'utilisation de cookies susceptibles de réaliser des statistiques de visite. Cliquez ici pour plus d'informations