Bénéficiez des services de nos partenaires locaux soigneusement sélectionnés
pour vous accompagner dans votre parcours d'achat immobilier

Appartement 66m² à blanquefort

— Blanquefort 33290 —
295 100 €
66 m²
3 pièces
parkingbalcon/terrasseascenseuraccès handicapé

Nos partenaires locaux
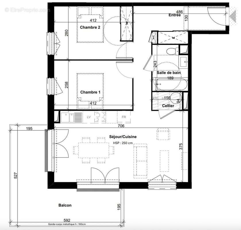
DERNIER ÉTAGE – GRANDE TERRASSE – RÉSIDENCE INTIMISTE BOURG DE BLANQUEFORT

Idéalement située à deux pas de la mairie de Blanquefort, des commerces, des écoles et des transports, cette résidence à taille humaine, rare sur le secteur, se distingue par son calme, sa qualité de construction et son environnement privilégié. Un emplacement de premier choix pour ceux qui recherchent confort de vie et proximité immédiate de toutes les commodités.

Découvrez ce superbe T3 en dernier étage, baigné de lumière grâce à sa triple ouverture plein Sud. Sa pièce de vie de 27 m² offre une atmosphère chaleureuse et lumineuse, prolongée par une magnifique terrasse de 18 m² exposée Sud, avec vue dégagée et sans nuisance : un véritable espace de détente en plein coeur de la ville.
Côté nuit, deux grandes chambres, dont une avec placard intégré, une salle de bains avec WC et un cellier complètent cet agencement parfaitement optimisé. Il y a également un placard dans l'entrée.

Quatre places de stationnement sont disponibles en SUS obligatoire (20 000€).

- Garanties
- Normes RE2020
- Frais de Notaire OFFERTS
- Disponible Immédiatement
- ...

DERNIER ÉTAGE – GRANDE TERRASSE – RÉSIDENCE INTIMISTE BOURG DE BLANQUEFORT

Honoraires à la charge du vendeur. Dans une copropriété de 18 lots. Aucune procédure n'est en cours. DPE en cours. Les informations sur les risques auxquels ce bien est exposé sont disponibles sur le site Géorisques : georisques.gouv.fr.

Votre conseiller RH Patrimoine : Maxime HERVE
Agent commercial (Entreprise individuelle)
RSAC 133095555 J
RCP 13309666 J
Voir plus

Référence: VA2879-RHPATRI
Bien en copropriété. Nombre de lots : 18.
Honoraires à la charge du vendeur.
Barème des honoraires

Prêt immobilier

Vous souhaitez connaître votre capacité d’emprunt et trouver le meilleur crédit immobilier ?
Réaliser une simulation gratuite

Appartement à BLANQUEFORT
Appartement à BLANQUEFORT
Appartement à BLANQUEFORT
Appartement à BLANQUEFORT
Appartement à BLANQUEFORT
Appartement à BLANQUEFORT
Appartement à BLANQUEFORT
Ce site est protégé par reCAPTCHA la Politique de confidentialité et les Conditions d’utilisation de Google s’appliquent.
Obtenir un prêt immobilier au meilleur taux ?

En poursuivant votre navigation sans modifier vos paramètres, vous acceptez l'utilisation de cookies susceptibles de réaliser des statistiques de visite. Cliquez ici pour plus d'informations