Bénéficiez des services de nos partenaires locaux soigneusement sélectionnés
pour vous accompagner dans votre parcours d'achat immobilier

Appartement 65m² à blanquefort

— Blanquefort 33290 —
294 100 €
65 m²
3 pièces
parkingbalcon/terrasseascenseuraccès handicapé

Nos partenaires locaux
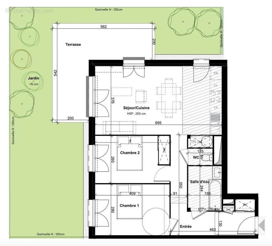
T3 AVEC GRAND ESPACE EXTÉRIEUR – RÉSIDENCE INTIMISTE AU COEUR DE BLANQUEFORT

Située dans l'un des secteurs les plus recherchés de Blanquefort, à seulement quelques pas de la mairie, des commerces, des écoles et des transports, cette résidence à taille humaine se distingue par son calme et la qualité de son environnement. Son implantation privilégiée offre un cadre de vie harmonieux, idéal pour ceux qui souhaitent allier confort quotidien et sérénité.

Découvrez ce très beau T3 en rez-de-jardin, bénéficiant d'un agencement fonctionnel et d'une belle luminosité. La pièce de vie s'ouvre sur un jardin/terrasse de 75 m², un véritable prolongement de l'intérieur qui propose un espace extérieur rare en coeur de ville. L'entrée dispose d'un placard intégré, tandis qu'un WC indépendant complète les commodités.
Côté nuit, deux chambres généreuses, une salle de bains moderne ainsi qu'un cellier offrant un rangement supplémentaire viennent parfaire cet ensemble.

Deux places de stationnement sont disponibles en SUS obligatoire (20 000€).

- Garanties
- Normes RE2020
- Frais de Notaire OFFERTS
- Disponible Immédiatement
- ...

T3 AVEC GRAND ESPACE EXTÉRIEUR – RÉSIDENCE INTIMISTE AU COEUR DE BLANQUEFORT

Honoraires à la charge du vendeur. Dans une copropriété de 16 lots. Aucune procédure n'est en cours. DPE en cours. Les informations sur les risques auxquels ce bien est exposé sont disponibles sur le site Géorisques : georisques.gouv.fr.

Votre conseiller RH Patrimoine : Maxime HERVE
Agent commercial (Entreprise individuelle)
RSAC 133095555 J
RCP 13309666 J
Voir plus

Référence: VA3208-RHPATRI
Bien en copropriété. Nombre de lots : 16.
Honoraires à la charge du vendeur.
Barème des honoraires

Prêt immobilier

Vous souhaitez connaître votre capacité d’emprunt et trouver le meilleur crédit immobilier ?
Réaliser une simulation gratuite

Appartement à BLANQUEFORT
Appartement à BLANQUEFORT
Appartement à BLANQUEFORT
Appartement à BLANQUEFORT
Appartement à BLANQUEFORT
Appartement à BLANQUEFORT
Appartement à BLANQUEFORT
Ce site est protégé par reCAPTCHA la Politique de confidentialité et les Conditions d’utilisation de Google s’appliquent.
Obtenir un prêt immobilier au meilleur taux ?

En poursuivant votre navigation sans modifier vos paramètres, vous acceptez l'utilisation de cookies susceptibles de réaliser des statistiques de visite. Cliquez ici pour plus d'informations