Bénéficiez des services de nos partenaires locaux soigneusement sélectionnés
pour vous accompagner dans votre parcours d'achat immobilier

Exclusivite - immeuble vienne - rentabilite 9%

— Vienne 38200 —
685 000 €
615 m²

Nos partenaires locaux
Opportunité pour pour investisseurs locatifs. Immeuble de 13 lots rentabilité à 9%.
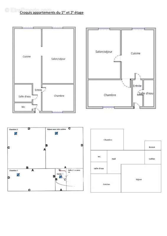
A vendre sur Vienne, proche du centre-ville, immeuble de 615 m² habitable, composé de 13 appartements répartis sur 3 niveaux avec des superficies variant de 43 m² à 53 m².
Les appartements sont tous loués, assurant ainsi une excellente rentabilité et un flux de revenus stable.
En outre, l'immeuble dispose d'un local de 100 m² également loué, ainsi qu'un autre espace offrant la possibilité d'aménager jusqu'à quatre places de parking sur 100 m².
Cet investissement présente un potentiel de valorisation élevé dans un secteur en pleine transformation.
N'hésitez pas à contacter Valérie au [Coordonnées masquées]pour plus d'informations et pour organiser une visite.
Voir plus

Référence: VS-2426
Barème des honoraires

Prêt immobilier

Vous souhaitez connaître votre capacité d’emprunt et trouver le meilleur crédit immobilier ?
Réaliser une simulation gratuite

Appartement à VIENNE
Appartement à VIENNE
Ce site est protégé par reCAPTCHA la Politique de confidentialité et les Conditions d’utilisation de Google s’appliquent.
Obtenir un prêt immobilier au meilleur taux ?

En poursuivant votre navigation sans modifier vos paramètres, vous acceptez l'utilisation de cookies susceptibles de réaliser des statistiques de visite. Cliquez ici pour plus d'informations