Bénéficiez des services de nos partenaires locaux soigneusement sélectionnés
pour vous accompagner dans votre parcours d'achat immobilier

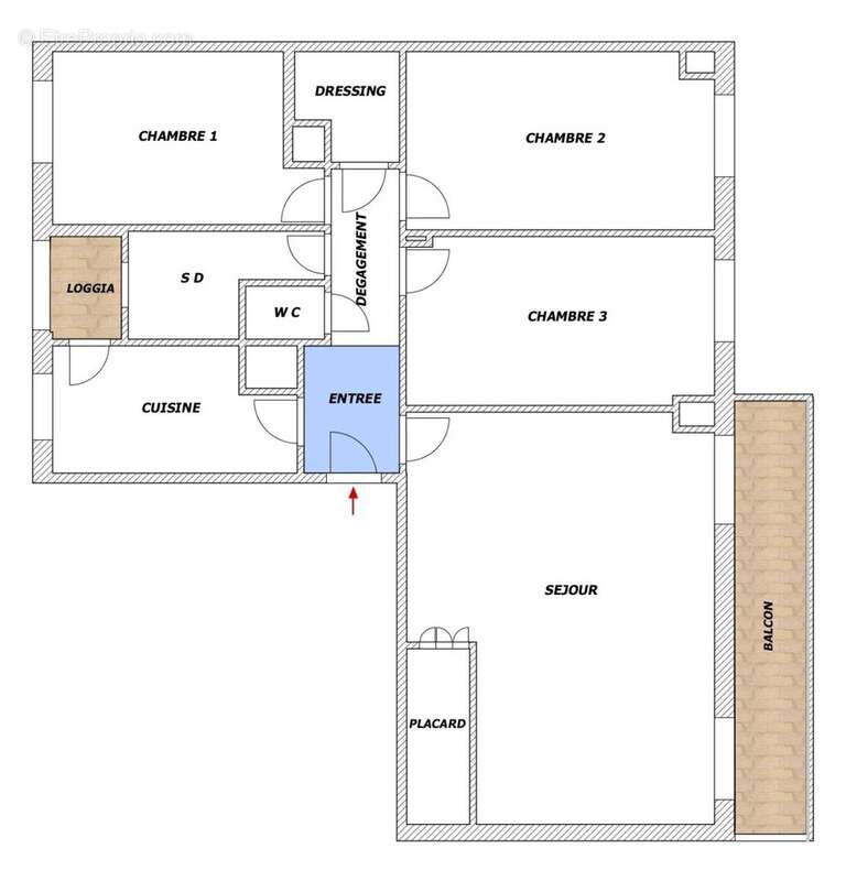
Appartement 4/5 pièces - superficie de 80 m2 - haut borrigo, quartier du suillet - balcon - etage élevé - parking

— Menton 06500 —
295 000 €
81 m²
5 pièces
ascenseur

Nos partenaires locaux
Situé dans le Haut Borrigo, quartier du Suillet, appartement type 4 / 5 pièces d'une superficie de 80 m2 traversant, bénéficiant d'un balcon et d'une loggia..
Ce bien est constitué d'une entrée, un double séjour permettant de créer une chambre supplémentaire, 3 chambres, une cuisine indépendante, une salle de douche et WC indépendants.
Il bénéfice d'une exposition Est / Ouest.
Une place de parking complète ce bien.
Les informations sur les risques auxquels ce bien est exposé sont disponibles sur le site Géorisques "http://georisques.gouv.fr".
Voir plus

Référence: 86511712
DPE
A
B
C
D
E
F
G
GES
A
B
C
D
E
F
G

Prêt immobilier

Vous souhaitez connaître votre capacité d’emprunt et trouver le meilleur crédit immobilier ?
Réaliser une simulation gratuite

Appartement à MENTON
Appartement à MENTON
Appartement à MENTON
Appartement à MENTON
Ce site est protégé par reCAPTCHA la Politique de confidentialité et les Conditions d’utilisation de Google s’appliquent.
Obtenir un prêt immobilier au meilleur taux ?

En poursuivant votre navigation sans modifier vos paramètres, vous acceptez l'utilisation de cookies susceptibles de réaliser des statistiques de visite. Cliquez ici pour plus d'informations