Bénéficiez des services de nos partenaires locaux soigneusement sélectionnés
pour vous accompagner dans votre parcours d'achat immobilier

Appartement t2 à saxe gambetta - lyon 7

— Lyon-7e 69007 —
145 000 €
43 m²
2 pièces

Nos partenaires locaux
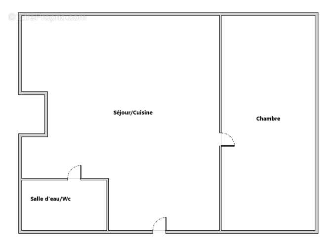
Appartement atypique à fort potentiel. Situé 57 rue Saint Michel à 3 minutes du métro Saxe Gambetta et de la Place Saint Louis, venez découvrir cet appartement de 26,5 M² carrez + 17 M² au sol situé au 4ème et dernier étage d'un immeuble de 1800 sans ascenseur. Les 17 M² de surface au sol (non carrez) commencent à partir des poutres. L'appartement exposé OUEST est lumineux, et bénéficie de double vitrage. Vous trouverez le croquis et les surfaces dans les photos. L'eau froide est individuelle avec le Grand Lyon. L'eau chaude et le chauffage sont individuels électriques. Charges de copropriété : 30 euros / mois pour l'entretien des parties communes. Coût total estimé = 80 euros par mois tout compris. Pas de travaux à venir sur l'immeuble. Contactez Monsieur VAIRON au O6 O3 O6 58 O8 Copropriété de 38 lots - dont 38 lots habitation. (Pas de procédure en cours). Charges annuelles : 330 euros.
Voir plus

Bien en copropriété. Nombre de lots : 38. Charges de copropriété : 330 €.
Honoraires à la charge du vendeur.
DPE
A
B
C
D
E
F
G
GES
A
B
C
D
E
F
G

Prêt immobilier

Vous souhaitez connaître votre capacité d’emprunt et trouver le meilleur crédit immobilier ?
Réaliser une simulation gratuite

Appartement à LYON-7E
Appartement à LYON-7E
Appartement à LYON-7E
Appartement à LYON-7E
Appartement à LYON-7E
Appartement à LYON-7E
Appartement à LYON-7E
Ce site est protégé par reCAPTCHA la Politique de confidentialité et les Conditions d’utilisation de Google s’appliquent.
Obtenir un prêt immobilier au meilleur taux ?

En poursuivant votre navigation sans modifier vos paramètres, vous acceptez l'utilisation de cookies susceptibles de réaliser des statistiques de visite. Cliquez ici pour plus d'informations