Bénéficiez des services de nos partenaires locaux soigneusement sélectionnés
pour vous accompagner dans votre parcours d'achat immobilier

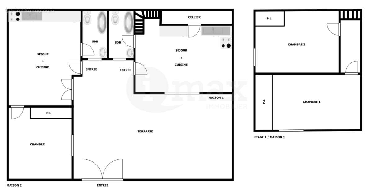
Colombes - maisons 5 pieces - 410 000 fai

— Colombes 92700 —
410 000 €
91 m²
5 pièces
balcon/terrasse

Nos partenaires locaux
Au coeur d'un quartier pavillonnaire, dans une rue calme et à proximité des transports et des commerces, IMAX vous propose en exclusivité cet ensemble immobilier composé de deux maisons indépendantes, à l'abri des regards, sur une même parcelle avec la possibilité de les réunir. La première maison, d'une superficie de 54 m², se compose d'une entrée ouvrant sur une terrasse, d'un séjour lumineux avec cuisine ouverte aménagée, d'un cellier, d'une salle de bain avec WC et espace buanderie. A l'étage, deux chambres avec rangements et des combles complètent l'ensemble. La seconde maison, d'environ 37 m², comprend un séjour avec cuisine aménagée, une salle d'eau avec WC et offre la possibilité d'une surélévation. Mandat de vente exclusif : V587 (3.80 % honoraires TTC à la charge de l'acquéreur.)
Voir plus

Honoraires d'agence de 3.8% à la charge de l'acquéreur
Barème des honoraires
DPE
A
B
C
D
E
F
G
GES
A
B
C
D
E
F
G

Prêt immobilier

Vous souhaitez connaître votre capacité d’emprunt et trouver le meilleur crédit immobilier ?
Réaliser une simulation gratuite

Maison à COLOMBES
Maison à COLOMBES
Maison à COLOMBES
Maison à COLOMBES
Maison à COLOMBES
Maison à COLOMBES
Maison à COLOMBES
Maison à COLOMBES
Maison à COLOMBES
Maison à COLOMBES
Maison à COLOMBES
Maison à COLOMBES
Ce site est protégé par reCAPTCHA la Politique de confidentialité et les Conditions d’utilisation de Google s’appliquent.
Obtenir un prêt immobilier au meilleur taux ?

En poursuivant votre navigation sans modifier vos paramètres, vous acceptez l'utilisation de cookies susceptibles de réaliser des statistiques de visite. Cliquez ici pour plus d'informations