Bénéficiez des services de nos partenaires locaux soigneusement sélectionnés
pour vous accompagner dans votre parcours d'achat immobilier

Voir tous les partenaires locaux

Appartement d'exception à saint germain des près

— Paris-6e 75006 —
2 520 000 €
88 m²
3 pièces
ascenseur

Nos partenaires locaux
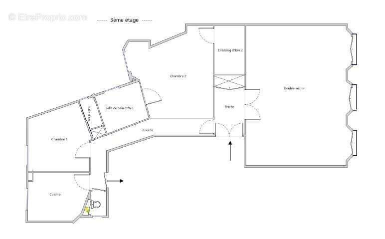
Face à l'abbaye de Saint Germain des Près, au 3e étage avec ascenseur d'un immeuble en pierres de taille de grand standing ravalé, l'agence Dante vous propose un bel appartement de 88m2. Il se compose d'un double séjour, d'une cuisine séparée, d'une chambre avec dressing, d'une seconde chambre, d'une salle de douches, d'une salle de bains avec toilette, d'un toilette séparé et de deux caves.
Vue dégagée exceptionnelle sur l'Abbaye, belle hauteur sous plafond, parquets et cheminée.
Coup de coeur.
Voir plus

Référence: 86484657
GES
A
B
C
D
E
F
G

Prêt immobilier

Vous souhaitez connaître votre capacité d’emprunt et trouver le meilleur crédit immobilier ?
Réaliser une simulation gratuite

Appartement à PARIS-6E
Appartement à PARIS-6E
Appartement à PARIS-6E
Appartement à PARIS-6E
Appartement à PARIS-6E
Appartement à PARIS-6E
Appartement à PARIS-6E
Appartement à PARIS-6E
Ce site est protégé par reCAPTCHA la Politique de confidentialité et les Conditions d’utilisation de Google s’appliquent.
Obtenir un prêt immobilier au meilleur taux ?

En poursuivant votre navigation sans modifier vos paramètres, vous acceptez l'utilisation de cookies susceptibles de réaliser des statistiques de visite. Cliquez ici pour plus d'informations