Bénéficiez des services de nos partenaires locaux soigneusement sélectionnés
pour vous accompagner dans votre parcours d'achat immobilier

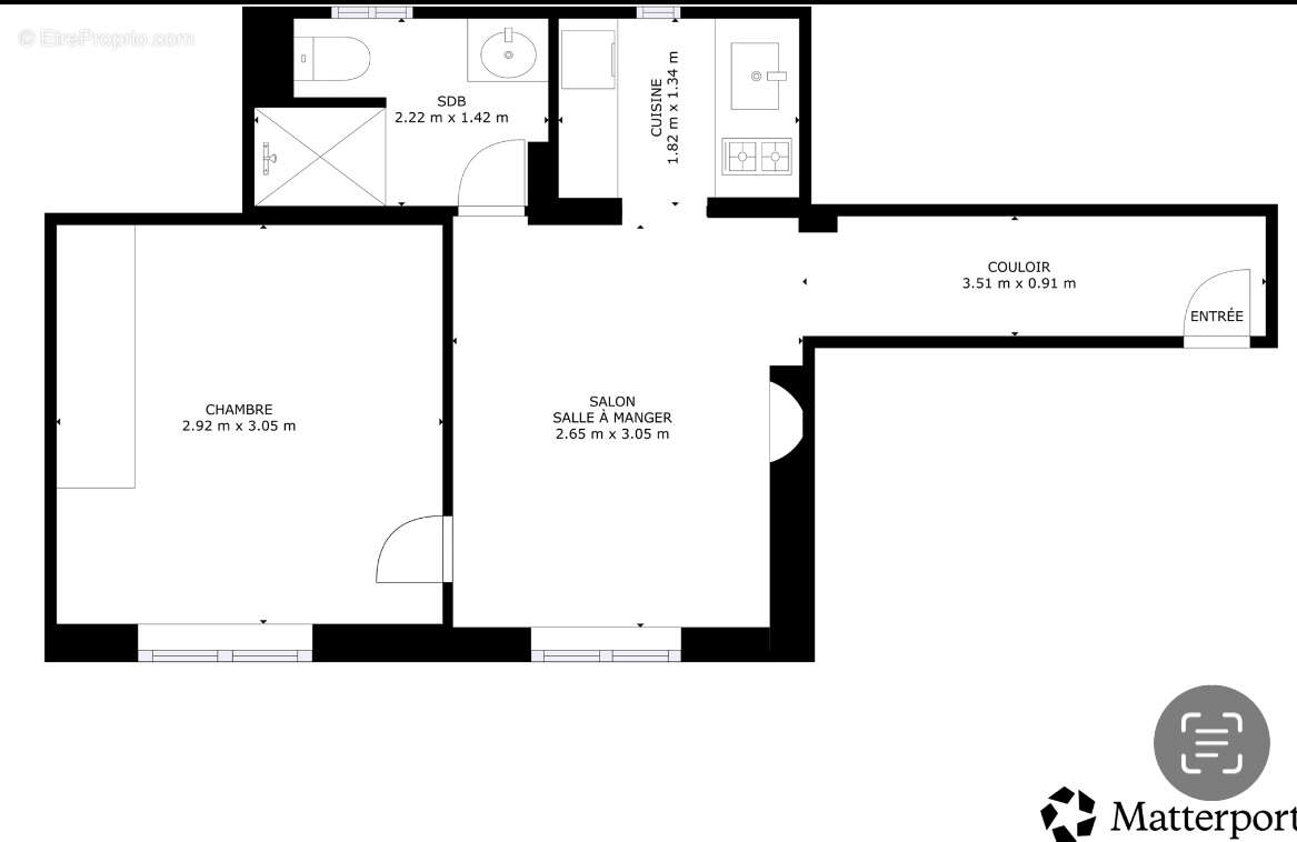
Appartement 25m² à paris 17e arrondissement

— Paris-17e 75017 —
294 000 €
26 m²
2 pièces

Nos partenaires locaux
ERA Guy Moquet, vous propose rue des Moines, métro Brochant/ Guy Moquet, ligne 14 et 13, bus, tramway. Proximité des commerces, restaurants.
Au 2ème étage entièrement sur cour, d'un immeuble entretenu, sécurisé digicode.
Un appartement 2 pièces de 25.71m2, avec aucuns travaux à prévoir, lumineux, traversant, doté d'un plan fonctionnel comprenant un salon avec une cuisine semi- ouverte aménagée et équipée, une chambre, une salle d'eau avec WC.
Les fenêtres sont toutes en double vitrage, chauffage et eau individuel électrique ? Performance énergétique F.
Charges 80€/ mois- 635€ Taxe foncière.
N'attendez pas, contactez-nous dès aujourd'hui pour organiser votre visite.
ERA GUY MOQUET
48, Rue Guy Môquet 75017 Paris [Coordonnées masquées] [Coordonnées masquées]
L'Etat des Risques et Pollution peut être consulté sur https://www.georisques.gouv.fr
Voir plus

Référence: 4100
DPE
A
B
C
D
E
F
G
GES
A
B
C
D
E
F
G

Prêt immobilier

Vous souhaitez connaître votre capacité d’emprunt et trouver le meilleur crédit immobilier ?
Réaliser une simulation gratuite

Appartement à PARIS-17E
Appartement à PARIS-17E
Appartement à PARIS-17E
Appartement à PARIS-17E
Appartement à PARIS-17E
Appartement à PARIS-17E
Appartement à PARIS-17E
Appartement à PARIS-17E
Appartement à PARIS-17E
Appartement à PARIS-17E
Ce site est protégé par reCAPTCHA la Politique de confidentialité et les Conditions d’utilisation de Google s’appliquent.
Obtenir un prêt immobilier au meilleur taux ?

En poursuivant votre navigation sans modifier vos paramètres, vous acceptez l'utilisation de cookies susceptibles de réaliser des statistiques de visite. Cliquez ici pour plus d'informations