Bénéficiez des services de nos partenaires locaux soigneusement sélectionnés
pour vous accompagner dans votre parcours d'achat immobilier

Appartement 94m² à marseille-5e

— Marseille-5e 13005 —
300 000 €
95 m²
4 pièces
parkingbalcon/terrasseascenseuraccès handicapé

Nos partenaires locaux
' Au coeur du Camas '

5ÈME – Le Camas

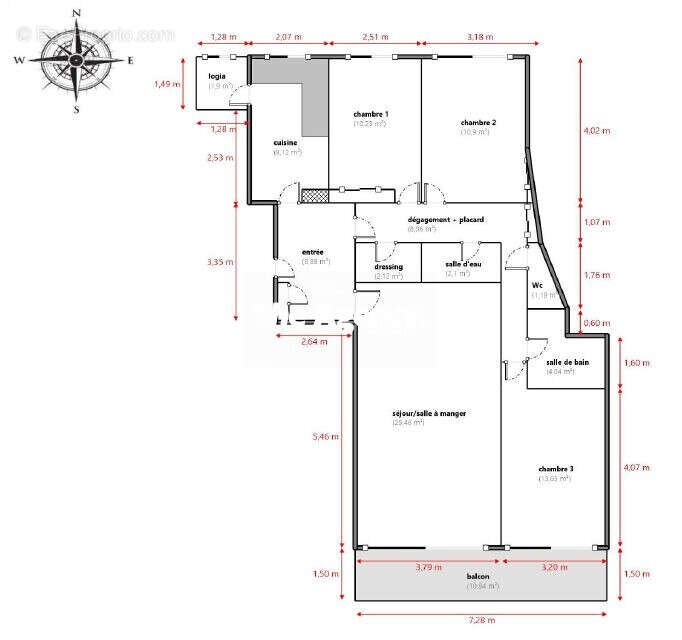
Type 4 de 95m² avec balcon de 11m²
+ Garage simple fermé en sous-sol en SUS


Idéalement situé à proximité des axes autoroutiers, transports en commun, commerces,
commodités du quotidien et établissements scolaires.


The Agency vous propose en exclusivité un type 4 de 94.75m² Loi Carrez au 2ème étage sur 9 avec ascenseur.


Il se compose de la façon suivante :


Côté jour :
Une entrée, un salon / séjour donnant accès à un balcon de 10.94m² exposée Sud,
une cuisine indépendante meublée avec loggia.


Côté nuit :
Un grand couloir, 3 chambres avec placard de rangement, un dressing, une salle de bain, une salle d'eau
et un WC indépendant.


Le bien est équipé d'huisseries en aluminium double vitrage et de volets roulants électriques.


Appartement à rafraichir dans son ensemble.


Possibilité d'acquérir un garage simple de 12.72m² fermé en sous-sol en SUS.


Charges (appartement + cave) : 339.00€ /mois
(Comprenant eau froide, eau chaude, chauffage, entretien des parties communes,
portail automatique, ascenseur, assurances copropriété et honoraires syndic)
Charges (garage) : 25.00€ / mois
Taxe foncière (le tout) : 2 553.00€ /an


'The Agency, la Révolution immobilière...'


Honoraires inclus de 5.63% TTC à la charge de l'acquéreur. Prix hors honoraires 284 000 €. Dans une copropriété de 346 lots. Quote-part moyenne du budget prévisionnel 4 068 €/an. Aucune procédure n'est en cours. Classe énergie D, Classe climat D Montant estimé des dépenses annuelles d'énergie pour un usage standard : entre 1130.00 € et 1570.00 € sur les années 2021, 2022 et 2023 (abonnements compris). Les informations sur les risques auxquels ce bien est exposé sont disponibles sur le site Géorisques : georisques.gouv.fr.

Votre conseiller The Agency : Kenneth MEFFRE
Agent commercial (Entreprise individuelle)
Voir plus

Référence: VA3414-THEAGENCY
Bien en copropriété. Nombre de lots : 346. Charges de copropriété : 4068 €.
Honoraires d'agence de 5.63% à la charge de l'acquéreur
Barème des honoraires
DPE
A
B
C
D
E
F
G
GES
A
B
C
D
E
F
G

Prêt immobilier

Vous souhaitez connaître votre capacité d’emprunt et trouver le meilleur crédit immobilier ?
Réaliser une simulation gratuite

Appartement à MARSEILLE-5E
Appartement à MARSEILLE-5E
Appartement à MARSEILLE-5E
Appartement à MARSEILLE-5E
Appartement à MARSEILLE-5E
Appartement à MARSEILLE-5E
Appartement à MARSEILLE-5E
Appartement à MARSEILLE-5E
Appartement à MARSEILLE-5E
Ce site est protégé par reCAPTCHA la Politique de confidentialité et les Conditions d’utilisation de Google s’appliquent.
Obtenir un prêt immobilier au meilleur taux ?

En poursuivant votre navigation sans modifier vos paramètres, vous acceptez l'utilisation de cookies susceptibles de réaliser des statistiques de visite. Cliquez ici pour plus d'informations