Bénéficiez des services de nos partenaires locaux soigneusement sélectionnés
pour vous accompagner dans votre parcours d'achat immobilier

Appartement 74m² à marseille-1e

— Marseille-1e 13001 —
350 000 €
74 m²
3 pièces
parkingbalcon/terrasse

Nos partenaires locaux
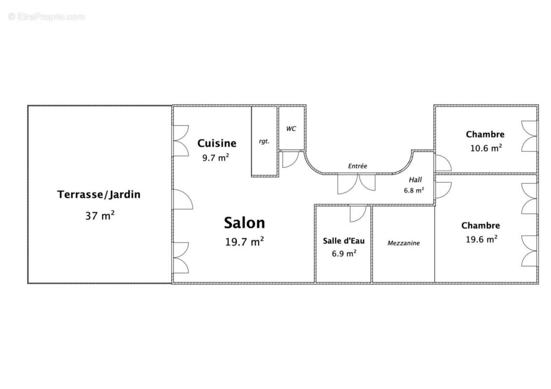
Un appartement ancien avec une vraie terrasse arborée, en plein étage, à deux pas du Palais Longchamp… vous pensiez que ça n'existait pas ? KRUSH vous confirme que si — et c’est une pépite.

Bienvenue au Chapitre, ce quartier marseillais qui retrouve aujourd’hui tout son éclat : façades fraîchement ravalées, ruelles pleines de caractère, commerces et restos à portée de main… et le métro, le tram, la gare TGV et Longchamp juste à côté.
Bref : l’emplacement idéal, sans débat.

Perché au 1er étage d’une petite copropriété impeccablement tenue, ce T3 à l’ancienne déroule son charme marseillais : disposition en étoile, persiennes, moulures, hauteur sous plafond… On est bien, là. Et comme le vintage ne suffit pas toujours, les propriétaires ont tout modernisé pour votre confort : home cinéma avec système son intégré, clim réversible et PAC, et cuisine haut de gamme avec plan de travail en pierre naturelle. Il lui suffit juste d'un petit coup de pep's !

Côté pratique, l’intelligence est partout :
cellier attenant à la cuisine, du rangement astucieusement accessible au-dessus de l'entrée et de la cuisine, mezzanine avec dressing dans la grande chambre, dressing dans la seconde, et même une petite cave privative sous l’escalier.

Sur 74 m², vous trouverez :

Une belle entrée protégée par une porte blindée

Une pièce de vie chaleureuse avec sa cuisine attenante

Un extérieur digne d’un patio méditerranéen, arboré, avec point d’eau, et… une cave à vin professionnelle (oui, vraiment !)

Une vaste salle d’eau avec douche à l’italienne

Une chambre avec dressing

Une autre chambre avec mezzanine + dressing

Et pour compléter le tableau, un garage à 5 minutes à pied, proposé en sus à 25 000 €.

Franchement ? Il ne lui manque rien. C’est le premier achat parfait, ou le pied-à-terre idéal pour profiter des soirées d’été à l’ombre des plantes de votre jardin suspendu.

On vous fait visiter quand ?
Voir plus

Référence: 86467664
DPE
A
B
C
D
E
F
G
GES
A
B
C
D
E
F
G

Prêt immobilier

Vous souhaitez connaître votre capacité d’emprunt et trouver le meilleur crédit immobilier ?
Réaliser une simulation gratuite

Appartement à MARSEILLE-1E
Appartement à MARSEILLE-1E
Appartement à MARSEILLE-1E
Appartement à MARSEILLE-1E
Appartement à MARSEILLE-1E
Appartement à MARSEILLE-1E
Appartement à MARSEILLE-1E
Appartement à MARSEILLE-1E
Appartement à MARSEILLE-1E
Appartement à MARSEILLE-1E
Appartement à MARSEILLE-1E
Appartement à MARSEILLE-1E
Appartement à MARSEILLE-1E
Appartement à MARSEILLE-1E
Appartement à MARSEILLE-1E
Appartement à MARSEILLE-1E
Appartement à MARSEILLE-1E
Appartement à MARSEILLE-1E
Ce site est protégé par reCAPTCHA la Politique de confidentialité et les Conditions d’utilisation de Google s’appliquent.
Obtenir un prêt immobilier au meilleur taux ?

En poursuivant votre navigation sans modifier vos paramètres, vous acceptez l'utilisation de cookies susceptibles de réaliser des statistiques de visite. Cliquez ici pour plus d'informations