Bénéficiez des services de nos partenaires locaux soigneusement sélectionnés
pour vous accompagner dans votre parcours d'achat immobilier

Appartement 35m² à chartres

— Chartres 28000 —
105 000 €
35 m²
1 pièce
parking

Nos partenaires locaux
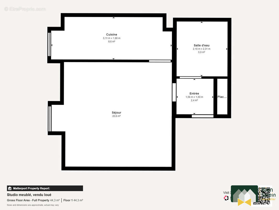
SPÉCIAL INVESTISSEUR – Studio lumineux de 35,36 m² déjà loué

Découvrez ce beau studio de 35,36 m², situé au 1er étage d'un bâtiment historique, sans travaux, avec stationnement, à 6 minutes à pied de la gare.
Ce bien, déjà loué, assure un rendement immédiat.

EN QUELQUES CHIFFRES
- Rendement brut : 5,2%
- Loyer actuel hors charges : 490€/mois - loué meublé
- Taxe foncière : 822€/an – taxe d'enlèvement des ordures ménagères déduite
- Charges de copropriété : 60,59 €/mois – quote-part investisseur
- Travaux : aucun à prévoir – appartement et copropriété en bon état

DESCRIPTION DU BIEN
- Superficie totale : 35,36m²
- Cuisine aménagée et équipée, fonctionnelle et bien agencée
- Salon-séjour avec coin nuit
- Salle d'eau avec WC

COTE CONFORT
- Chauffage individuel électrique
- Fibre optique
- Petite copropriété, bien entretenue

EMPLACEMENT
- Arrêt de bus à 5 min à pied
- Proche de la gare
- À moins de 10 min à pied : écoles, commerces, restaurants, médecins, parc
- Quartier agréable, bien desservi et recherché par les locataires

Contactez votre agent au Noeud Pap' pour organiser une visite !
Découvrez nos autres biens dédiés à l'investissement locatif sur notre site, dans l'onglet « Investir ».

Honoraires à la charge du vendeur. Dans une copropriété de 1 lots. Aucune procédure n'est en cours. Classe énergie E, Classe climat B Montant moyen estimé des dépenses annuelles d'énergie pour un usage standard, établi à partir des prix de l'énergie de l'année 2021 : entre 880.00 et 1220.00 €. Les informations sur les risques auxquels ce bien est exposé sont disponibles sur le site Géorisques : georisques.gouv.fr.
Voir plus

Référence: 723-BIENSEREIN28
Bien en copropriété. Nombre de lots : 1.
Honoraires à la charge du vendeur.
Barème des honoraires
DPE
A
B
C
D
E
F
G
GES
A
B
C
D
E
F
G

Prêt immobilier

Vous souhaitez connaître votre capacité d’emprunt et trouver le meilleur crédit immobilier ?
Réaliser une simulation gratuite

Appartement à CHARTRES
Appartement à CHARTRES
Appartement à CHARTRES
Appartement à CHARTRES
Appartement à CHARTRES
Appartement à CHARTRES
Ce site est protégé par reCAPTCHA la Politique de confidentialité et les Conditions d’utilisation de Google s’appliquent.
Obtenir un prêt immobilier au meilleur taux ?

En poursuivant votre navigation sans modifier vos paramètres, vous acceptez l'utilisation de cookies susceptibles de réaliser des statistiques de visite. Cliquez ici pour plus d'informations