Bénéficiez des services de nos partenaires locaux soigneusement sélectionnés
pour vous accompagner dans votre parcours d'achat immobilier

Appartement f3

— Rosenau 68128 —
309 000 €
ascenseuraccès handicapé

Nos partenaires locaux
Construction d'une nouvelle résidence de 21 logements

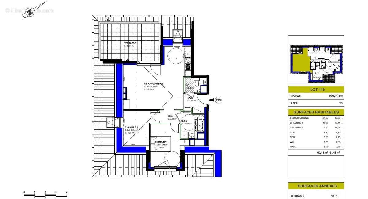
Lot A119
Appartement de type F3 d'une surface de 62,13m², au 3ème et dernier étage avec ascenseur, comprenant :

Une entrée avec armoire murale, une cuisine à équiper ouverte sur le salon-séjour donnant accès à la terrasse de 18,91m²

Un dégagement, 2 chambres, une salle de bains équipée, WC séparé avec lave-mains

Chauffage individuel au gaz, planchers chauffants
Volets roulants électriques
Porte sécurisée, visiophone
Déco au choix dans la gamme du Promoteur

Garage en supplément à partir de 16 000 euros
Parking en supplément au prix de 2 700 euros
Cave en supplément à partir de 2 500 euros

Eligible défiscalisation Pinel

Prix direct Promoteur
Frais de Notaire réduits

Livraison 2ème semestre 2024
Voir plus

Référence: 7683703
Barème des honoraires

Prêt immobilier

Vous souhaitez connaître votre capacité d’emprunt et trouver le meilleur crédit immobilier ?
Réaliser une simulation gratuite

Appartement à ROSENAU
Appartement à ROSENAU
Ce site est protégé par reCAPTCHA la Politique de confidentialité et les Conditions d’utilisation de Google s’appliquent.
Obtenir un prêt immobilier au meilleur taux ?

En poursuivant votre navigation sans modifier vos paramètres, vous acceptez l'utilisation de cookies susceptibles de réaliser des statistiques de visite. Cliquez ici pour plus d'informations