Maison 119m² à mareuil-sur-lay-dissais

— Mareuil-Sur-Lay-Dissais 85320 —
264 750 €
120 m² / 44 960 m²
5 pièces
jardin

EN VENTE EN EXCLUSIVITE CHEZ PHILIPPE BROCHARD IMMOBILIER
Située à seulement 5 minutes de Mareuil sur Lay, cette propriété allie le calme de la campagne à la proximité des services.
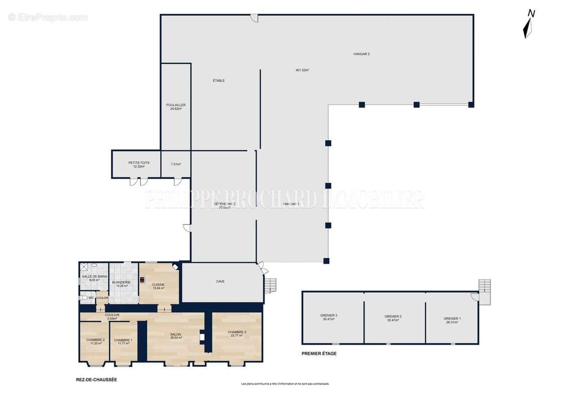
Vous bénéficierez d'une maison à rénover de 119 m² comprenant un grand salon lumineux de 28,54 m² avec cheminée, 3 chambres dont une très grande de 23,77 m², et une cuisine fonctionnelle avec cheminée, prolongée par une buanderie.
Aménagez votre future terrasse à l'arrière de la cuisine, exposée à l'Ouest, sans vis à vis et donnant sur des charmants petits toits en pierres !
Avec 85 m² de greniers aménageables, vous aurez la possibilité de créer des espaces supplémentaires selon vos envies.
Consultez le plan, il y a un énorme potentiel !
Vous disposerez également d'une grande salle de bains de 8,05 m² à revoir avec douche, lavabo, bidet. WC séparés.
A l'extérieur, vous profiterez d'un immense hangar semi ouvert, pratique pour le stockage, le bricolage ou pour votre camping-car, ainsi qu'une dépendance en pierres, un poulailler et une belle cave.
La maison est vendue avec 4 hectares de terres attenantes et sera idéale pour des activités extérieures, des chevaux ou autres animaux (actuellement il y a plusieurs prés dotés de clôtures, une étable et un grand poulailler). Si vous n'en avez pas l'utilité, louez simplement ces terres !

Rare sur le marché !
Pour plus d'informations ou pour organiser une visite, contactez Marie Brochard au [Coordonnées masquées]
Plan et visite virtuelle disponibles.
Audit énergétique disponible sur demande.



Honoraires inclus de 5.9% TTC à la charge de l'acquéreur. Prix hors honoraires 250 000 €. Classe énergie F, Classe climat C Logement à consommation énergétique excessive. Montant estimé des dépenses annuelles d'énergie pour un usage standard : entre 2430.00 € et 3330.00 € sur les années 2021, 2022 et 2023 (abonnements compris). Les informations sur les risques auxquels ce bien est exposé sont disponibles sur le site Géorisques : georisques.gouv.fr.

AC 85[Coordonnées masquées]00339
Voir plus

Référence: VM8737-BROCHARD
Honoraires d'agence de 5.9% à la charge de l'acquéreur
Barème des honoraires
DPE
A
B
C
D
E
F
G
GES
A
B
C
D
E
F
G

Prêt immobilier

Vous souhaitez connaître votre capacité d’emprunt et trouver le meilleur crédit immobilier ?
Réaliser une simulation gratuite

Maison à MAREUIL-SUR-LAY-DISSAIS
Maison à MAREUIL-SUR-LAY-DISSAIS
Maison à MAREUIL-SUR-LAY-DISSAIS
Maison à MAREUIL-SUR-LAY-DISSAIS
Maison à MAREUIL-SUR-LAY-DISSAIS
Maison à MAREUIL-SUR-LAY-DISSAIS
Maison à MAREUIL-SUR-LAY-DISSAIS
Maison à MAREUIL-SUR-LAY-DISSAIS
Maison à MAREUIL-SUR-LAY-DISSAIS
Ce site est protégé par reCAPTCHA la Politique de confidentialité et les Conditions d’utilisation de Google s’appliquent.
Obtenir un prêt immobilier au meilleur taux ?

En poursuivant votre navigation sans modifier vos paramètres, vous acceptez l'utilisation de cookies susceptibles de réaliser des statistiques de visite. Cliquez ici pour plus d'informations