Bénéficiez des services de nos partenaires locaux soigneusement sélectionnés
pour vous accompagner dans votre parcours d'achat immobilier

A vendre - neuilly-sur-seine île de la jatte - appartement 3 pièces de 65 m²

— Levallois-Perret 92300 —
695 000 €
65 m²
3 pièces
ascenseur

Nos partenaires locaux
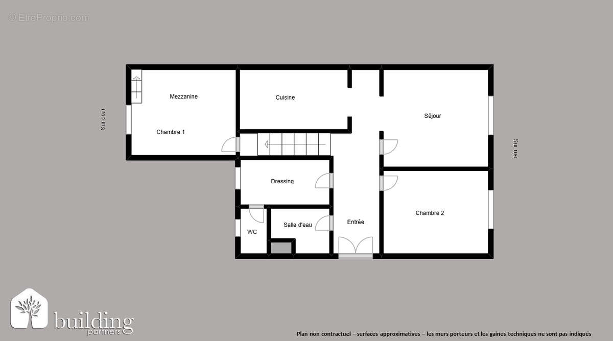
Situé sur l'île de la Jatte, dans un environnement privilégié et verdoyant, cet appartement de 65 m² se trouve au 1er étage avec ascenseur d'un immeuble ancien de bon standing. Traversant et lumineux, il bénéficie d'une vue dégagée sans vis-à-vis. Il se compose d'une entrée, d'un séjour confortable ouvrant sur une cuisine semi-ouverte aménagée, de deux chambres dont une avec mezzanine permettant d'optimiser l'espace en créant deux zones de couchage, d'une salle d'eau, de WC séparés et d'une cave en sous-sol. L'emplacement est recherché pour sa qualité de vie et sa proximité des commerces, des transports et des bords de Seine. Il est situé dans le secteur scolaire du collège Maurois et du lycée Pasteur. Ce bien rare à la vente séduira les familles ou les investisseurs à la recherche d'un bien de charme, fonctionnel et idéalement situé. N'hésitez pas à nous contacter pour plus d'informations ou organiser une visite. Depuis 1993, BUILDING PARTNERS accompagne les propriétaires dans la vente de biens immobiliers de standing sur l'ouest parisien. Notre force ? Une organisation unique avec deux rôles experts : Les Brokers, spécialisés dans la prospection et la valorisation de votre bien. Les Sellers, experts en négociation et en mise en relation avec notre portefeuille d'acheteurs qualifiés. Avec 5 agences implantées au coeur des quartiers les plus recherchés (Paris 16e, Paris 17e, Neuilly, Levallois, Courbevoie), nous vous offrons une visibilité maximale, un accompagnement personnalisé et un engagement total jusqu'à la signature. Confiez-nous votre bien pour une vente rapide, au meilleur prix. Estimation offerte, confidentielle et sans engagement. Copropriété de 25 lots (Pas de procédure en cours).
Voir plus

Bien en copropriété. Nombre de lots : 25.
Honoraires à la charge du vendeur.
Barème des honoraires
DPE
A
B
C
D
E
F
G
GES
A
B
C
D
E
F
G

Prêt immobilier

Vous souhaitez connaître votre capacité d’emprunt et trouver le meilleur crédit immobilier ?
Réaliser une simulation gratuite

Appartement à LEVALLOIS-PERRET
Appartement à LEVALLOIS-PERRET
Appartement à LEVALLOIS-PERRET
Appartement à LEVALLOIS-PERRET
Appartement à LEVALLOIS-PERRET
Appartement à LEVALLOIS-PERRET
Appartement à LEVALLOIS-PERRET
Appartement à LEVALLOIS-PERRET
Appartement à LEVALLOIS-PERRET
Appartement à LEVALLOIS-PERRET
Ce site est protégé par reCAPTCHA la Politique de confidentialité et les Conditions d’utilisation de Google s’appliquent.
Obtenir un prêt immobilier au meilleur taux ?

En poursuivant votre navigation sans modifier vos paramètres, vous acceptez l'utilisation de cookies susceptibles de réaliser des statistiques de visite. Cliquez ici pour plus d'informations