Terrain 359m² à saint-pierre

— Saint-Pierre 97410 —
165 055 €
359 m²

Iad France - Mathieu Hoareau vous propose : Deux Terrains constructibles à Monts-les-Bas (haut du Chemin Lebon)

Opportunité à ne pas manquer !
Dans un secteur calme, recherché et parfaitement situé, découvrez les 6 terrains de 359 m² a d'en 359 m² environs, terrain plus ou moins plat, en zone UF, idéal pour votre future construction.
6 m à l'égout du toit ou au sommet de l'acrotère et à 11 m au faîtage.
50% emprise au sol

? Points forts :

Terrain prêt à bâtir (réseaux électricité, eau et télécom à proximité)

Environnement agréable à 380 m d'altitude

À seulement 10 minutes du CHU

Proche des commodités : commerces, écoles, transports

Accès facile, quartier résidentiel prisé

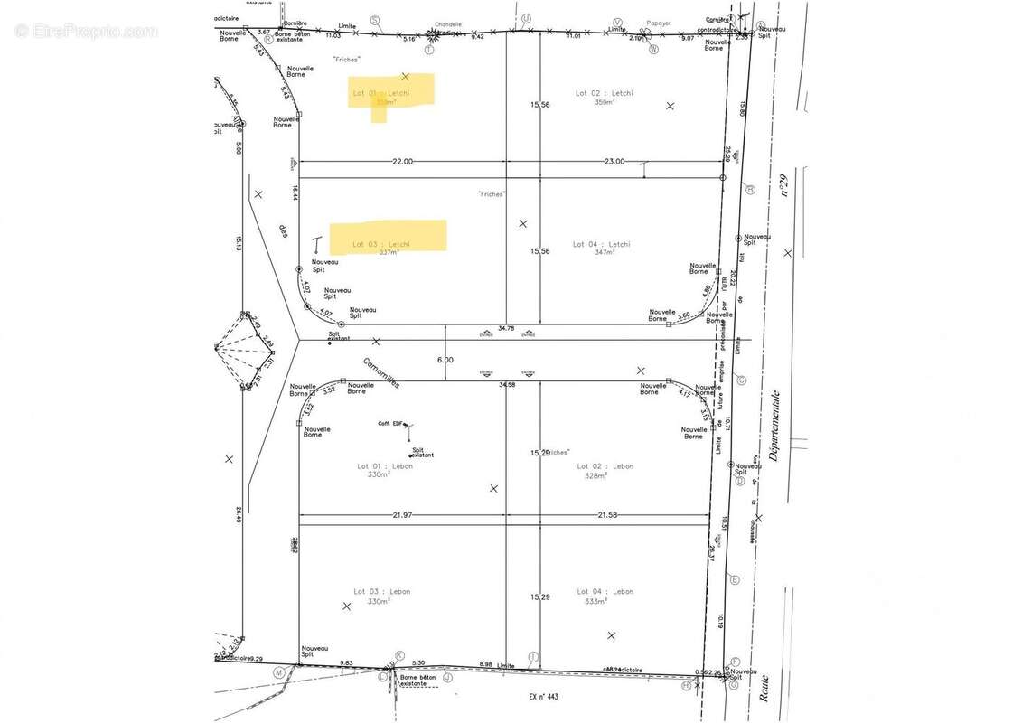
? Les terrains indiqués en jaune sur le plan sont déjà vendus.

Idéal pour un premier projet, une résidence principale ou un investissement.


Honoraires d'agence à la charge du vendeur.
Bien non soumis au DPE. Les informations sur les risques auxquels ce bien est exposé, y compris l'obligation légale de débroussaillement, sont disponibles sur le site Géorisques : http://www.georisques.gouv.fr.
La présente annonce immobilière a été rédigée sous la responsabilité éditoriale de M Mathieu Hoareau mandataire indépendant en immobilier (sans détention de fonds), agent commercial de la SAS I@D France immatriculé au RSAC de SAINT PIERRE DE LA REUNION sous le numéro 949522072, titulaire de la carte de démarchage immobilier pour le compte de la société I@D France SAS.
Informations LOI ALUR :
Honoraires charge vendeur. (gedeon_6727_32299355)
Voir plus

Référence: 1906676
Honoraires à la charge du vendeur.

Prêt immobilier

Vous souhaitez connaître votre capacité d’emprunt et trouver le meilleur crédit immobilier ?
Réaliser une simulation gratuite

Photo 1 - Terrain à SAINT-PIERRE
Photo 1
Photo 2 - Terrain à SAINT-PIERRE
Photo 2
Photo 3 - Terrain à SAINT-PIERRE
Photo 3
Ce site est protégé par reCAPTCHA la Politique de confidentialité et les Conditions d’utilisation de Google s’appliquent.
Obtenir un prêt immobilier au meilleur taux ?

En poursuivant votre navigation sans modifier vos paramètres, vous acceptez l'utilisation de cookies susceptibles de réaliser des statistiques de visite. Cliquez ici pour plus d'informations