Appartement 39m² à epinay-sur-orge

— Epinay-Sur-Orge 91360 —
164 000 €
39 m²
2 pièces
parkingascenseur

Iad France - Jessica Abella vous propose : IDÉAL PREMIER ACHAT ou INVESTISSEMENT LOCATIF

En plein CENTRE-VILLE, à PROXIMITÉ IMMÉDIATE DE TOUT (commerces, GARE RER C Epinay-sur-Orge, tramway T12, et axes routiers A6 et N20), venez découvrir ce 2 PIÈCES situé au 1er ÉTAGE avec ASCENSEUR d'une résidence datant de 2000, SÉCURISÉE et bien entretenue avec de beaux ESPACES VERTS.

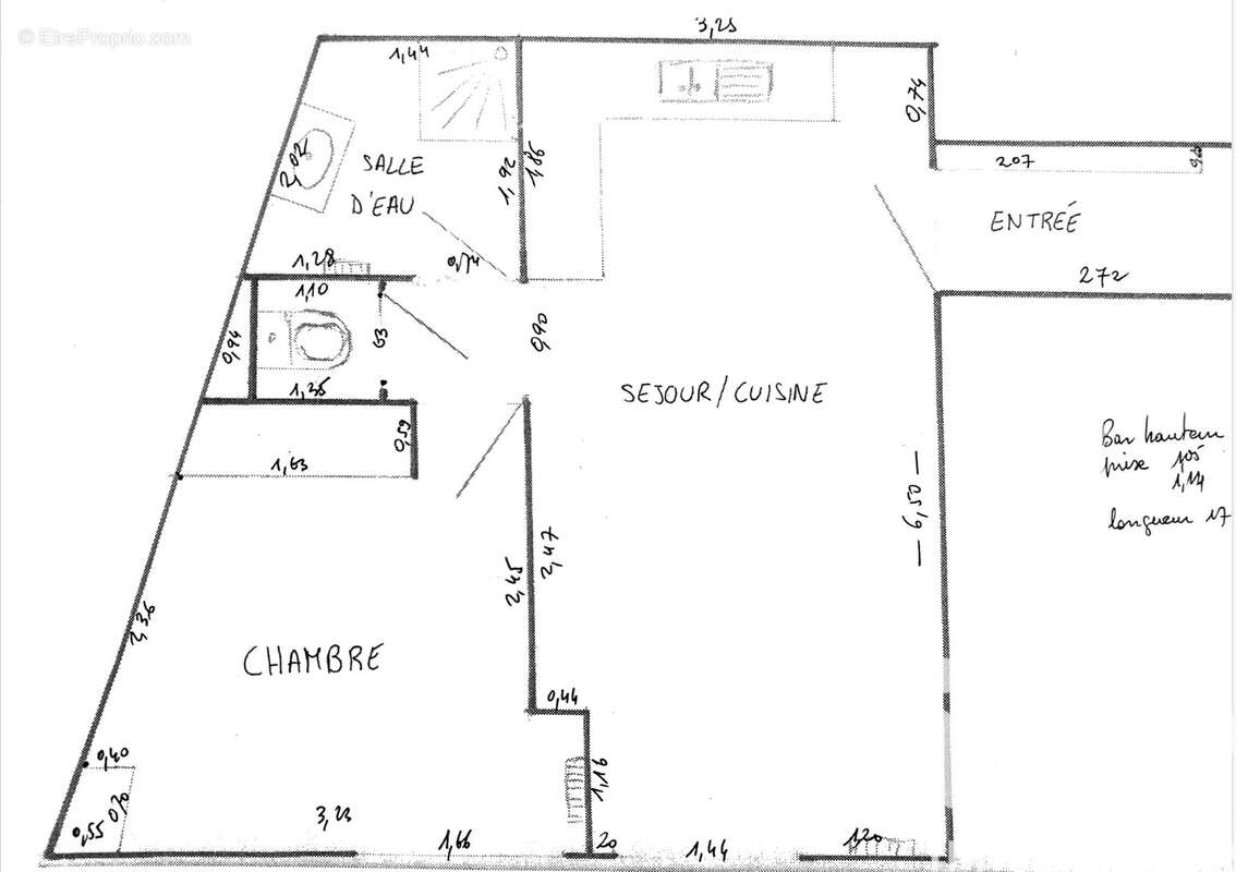
Le bien se compose d'une entrée, un séjour LUMINEUX avec cuisine ouverte aménagée formant un bel espace de vie.
Côté nuit, une chambre confortable avec RANGEMENTS, une salle d'eau et des WC INDÉPENDANTS.
Le bien est complété par une GRANDE CAVE en sous-sol ainsi qu'un BOX FERMÉ dans le parking sécurisé de la résidence.

Les PLUS : DPE D, CHAUFFAGE INDIVIDUEL AU GAZ, VISIOPHONE, DOUBLE VITRAGE ALU et VOLETS ROULANTS ELECTRIQUES.
Le tout en BON ÉTAT GÉNÉRAL!

Je suis à votre disposition 6j / 7 pour tout renseignement complémentaire ou pour organiser une visite.

VISITE VIRTUELLE disponible sur demande

La presente annonce immobiliere vise 4 lots situés dans une copropriété de 93 lots au total et ne faisant l'objet d'aucune procédure en cours citée à l'article L. 721-1 du code de la construction et de l'habitation. Montant moyen mensuel de charges déclaré par le vendeur : 124.19¤ par mois (soit 1490.32 ¤ annuel). Honoraires d'agence à la charge du vendeur.
Information d'affichage énergétique sur ce bien : classe ENERGIE D indice 216 et classe CLIMAT D indice 43. Les informations sur les risques auxquels ce bien est exposé, y compris l'obligation légale de débroussaillement, sont disponibles sur le site Géorisques : http://www.georisques.gouv.fr.
La présente annonce immobilière a été rédigée sous la responsabilité éditoriale de Mme Jessica Abella mandataire indépendant en immobilier (sans détention de fonds), agent commercial de la SAS I@D France immatriculé au RSAC de EVRY sous le numéro 843856451, titulaire de la carte de démarchage immobilier pour le compte de la société I@D France SAS.
Informations LOI ALUR :
Soumis au régime de copropriété.
Nombre de lots : 93.
Quote part annuelle(moyenne) : 1490.32 euros.
Honoraires charge vendeur. (gedeon_6727_32309605)
Voir plus

Référence: 1900711
Bien en copropriété. Nombre de lots : 93. Charges de copropriété : 1490 €.
Honoraires à la charge du vendeur.
DPE
A
B
C
D
E
F
G
GES
A
B
C
D
E
F
G

Prêt immobilier

Vous souhaitez connaître votre capacité d’emprunt et trouver le meilleur crédit immobilier ?
Réaliser une simulation gratuite

Photo 1 - Appartement à EPINAY-SUR-ORGE
Photo 1
Photo 2 - Appartement à EPINAY-SUR-ORGE
Photo 2
Photo 3 - Appartement à EPINAY-SUR-ORGE
Photo 3
Photo 4 - Appartement à EPINAY-SUR-ORGE
Photo 4
Photo 5 - Appartement à EPINAY-SUR-ORGE
Photo 5
Photo 6 - Appartement à EPINAY-SUR-ORGE
Photo 6
Photo 7 - Appartement à EPINAY-SUR-ORGE
Photo 7
Photo 8 - Appartement à EPINAY-SUR-ORGE
Photo 8
Photo 9 - Appartement à EPINAY-SUR-ORGE
Photo 9
Ce site est protégé par reCAPTCHA la Politique de confidentialité et les Conditions d’utilisation de Google s’appliquent.
Obtenir un prêt immobilier au meilleur taux ?

En poursuivant votre navigation sans modifier vos paramètres, vous acceptez l'utilisation de cookies susceptibles de réaliser des statistiques de visite. Cliquez ici pour plus d'informations