Terrain 1350m² à nyons

— Nyons 26110 —
117 000 €
1 350 m²

Iad France - Johann Garcia vous propose : À Nyons, en Drôme Provençâle, au cOEur d'un environnement recherché, découvrez ce magnifique terrain constructible de 1 350 m², une opportunité rare sur le secteur.

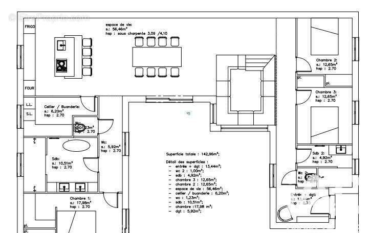
Permis de construire accordé pour une maison de plain-pied de 150 m², avec garage, piscine et hauteur de construction possible jusqu'à 4,90 m.

Idéalement exposé, en position dominante, il offre un cadre privilégié sans aucun vis-à-vis et un ensoleillement optimal tout au long de la journée.

Situé dans un secteur paisible, proche des commodités de Nyons, réputée pour sa qualité de vie, son climat et son dynamisme.

Documents disponibles.

Viabilisation à la charge de l'acquéreur.

Honoraires d'agence à la charge du vendeur.
Bien non soumis au DPE. Les informations sur les risques auxquels ce bien est exposé, y compris l'obligation légale de débroussaillement, sont disponibles sur le site Géorisques : http://www.georisques.gouv.fr.
La présente annonce immobilière a été rédigée sous la responsabilité éditoriale de M Johann Garcia mandataire indépendant en immobilier (sans détention de fonds), agent commercial de la SAS I@D France immatriculé au RSAC de Avignon sous le numéro 802873232, titulaire de la carte de démarchage immobilier pour le compte de la société I@D France SAS.
Informations LOI ALUR :
Honoraires charge vendeur. (gedeon_6727_32309651)
Voir plus

Référence: 1901975
Honoraires à la charge du vendeur.

Prêt immobilier

Vous souhaitez connaître votre capacité d’emprunt et trouver le meilleur crédit immobilier ?
Réaliser une simulation gratuite

Photo 1 - Terrain à NYONS
Photo 1
Photo 2 - Terrain à NYONS
Photo 2
Photo 3 - Terrain à NYONS
Photo 3
Photo 4 - Terrain à NYONS
Photo 4
Photo 5 - Terrain à NYONS
Photo 5
Photo 6 - Terrain à NYONS
Photo 6
Ce site est protégé par reCAPTCHA la Politique de confidentialité et les Conditions d’utilisation de Google s’appliquent.
Obtenir un prêt immobilier au meilleur taux ?

En poursuivant votre navigation sans modifier vos paramètres, vous acceptez l'utilisation de cookies susceptibles de réaliser des statistiques de visite. Cliquez ici pour plus d'informations