Bénéficiez des services de nos partenaires locaux soigneusement sélectionnés
pour vous accompagner dans votre parcours d'achat immobilier

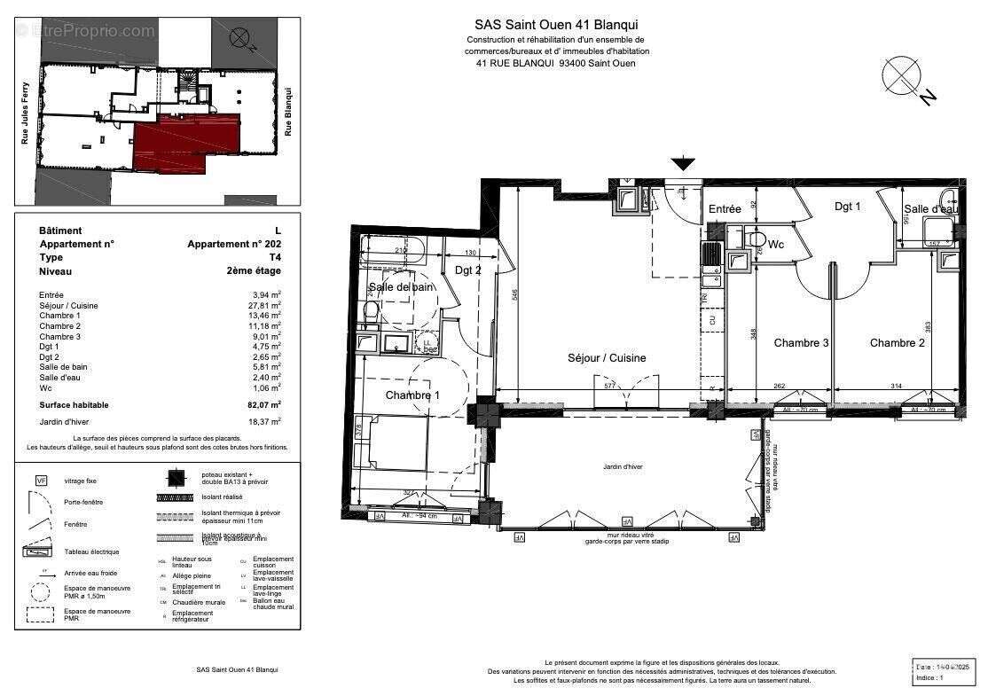
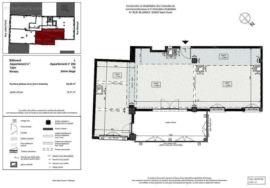
Appartement 84m² à saint-ouen

— Saint-Ouen 93400 —
622 224 €
84 m²
4 pièces

Nos partenaires locaux
Iad France - Marc Franc ([Coordonnées masquées]) vous propose : Votre LOFT PRESTIGE - 'TOUR NOVA'' à la porte de PARIS.

« TOUR LODS» à SAINT OUEN, la finesse contemporaine, harmonie de l'ancien à la signature de Marcel LODS, architecte avant-gardiste des années 30. La réhabilitation de ce bâtiment tertiaire, au style industriel, en logements de prestige, à la conception moderne, aux formes géométriques pures et élégantes, associant briques, verre et métal.

À l'exception des fenêtres, portes palières blindées, fibre internet et arrivées d'eau et d'électricité raccordées aux réseaux principaux, votre appartement est livré brut à aménager selon vos envies, vos goûts, votre style plutôt classique ou assurément design. Votre intérieur est à votre signature, unique en tout point. La plupart des lofts dispose d'un privilège supplémentaire, un agréable jardin d'hiver en lieu et place de l'ancien monte-charge.

Disponibilités

- de 84 à 96 m² environ, aménageables en 3 ou 4 pièces

Règlementation Environnementale RT 2012. Livraison prévisionnelle 1er T 2026.

Contactez-moi pour en savoir plus !

Honoraires d'agence à la charge du vendeur. Bien non soumis au DPE. Les informations sur les risques auxquels ce bien est exposé sont disponibles sur le site Géorisques : www.georisques.gouv.fr. La présente annonce immobilière a été rédigée sous la responsabilité éditoriale de M. Marc Franc EI (ID 83540), mandataire indépendant en immobilier (sans détention de fonds), agent commercial de la SAS I@D France immatriculé au RSAC de VANNES sous le numéro 931732952, titulaire de la carte de démarchage immobilier pour le compte de la société I@D France SAS.
Retrouvez tous nos biens sur notre site internet. www.iadfrance.fr.
Informations LOI ALUR :
Honoraires charge vendeur. (gedeon_6727_32309773)
Voir plus

Référence: 1905091-7
Honoraires à la charge du vendeur.

Prêt immobilier

Vous souhaitez connaître votre capacité d’emprunt et trouver le meilleur crédit immobilier ?
Réaliser une simulation gratuite

Photo 1 - Appartement à SAINT-OUEN
Photo 1
Photo 2 - Appartement à SAINT-OUEN
Photo 2
Photo 3 - Appartement à SAINT-OUEN
Photo 3
Photo 4 - Appartement à SAINT-OUEN
Photo 4
Photo 5 - Appartement à SAINT-OUEN
Photo 5
Photo 6 - Appartement à SAINT-OUEN
Photo 6
Photo 7 - Appartement à SAINT-OUEN
Photo 7
Ce site est protégé par reCAPTCHA la Politique de confidentialité et les Conditions d’utilisation de Google s’appliquent.
Obtenir un prêt immobilier au meilleur taux ?

En poursuivant votre navigation sans modifier vos paramètres, vous acceptez l'utilisation de cookies susceptibles de réaliser des statistiques de visite. Cliquez ici pour plus d'informations