Bénéficiez des services de nos partenaires locaux soigneusement sélectionnés
pour vous accompagner dans votre parcours d'achat immobilier

Appartement 64m² à chartres

— Chartres 28000 —
249 000 €
64 m²
3 pièces
balcon/terrasseascenseur

Nos partenaires locaux
Iad France - Mélanie Jolivet vous propose : Secteur calme - Accès rapide aux gares de Chartres et Saint Prest, au centre-ville et à l'autoroute - Résidence de fin 2024.

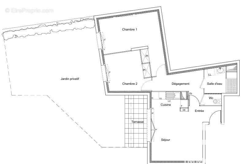
Cet appartement se compose d'un séjour lumineux avec une cuisine aménagée et équipée contemporaine qui vous donnera accès à la terrasse et au jardin privatif clos.
Côté nuit, un grand dégagement pouvant devenir un espace bureau dessert deux chambres orientées au calme avec leurs placards de rangement, une salle d'eau aménagée avec douche à l'italienne, et un WC séparé.
Une cave ainsi que deux places de stationnement couvert en rez-de-chaussée sécurisé viennent compléter le bien.

De fin 2024 et aménagé, vous n'aurez pas besoin d'attendre pour bénéficier de toutes les qualités d'un bien très récent et de la garantie décennale, cet appartement répond aux dernières normes pour un confort optimal et des économies d'énergie. Pour votre quotidien, vous profiterez également de volets motorisés, d'un interphone pouvant être connecté à votre smartphone et d'un chauffage électrique individuel.

Vous apprécierez l'environnement calme et l'accès rapide aux gares SNCF (stationnement gratuit à Saint Prest), aux commodités et aux grands axes de circulation.

Ne laissez pas passer cette opportunité d'acquérir ce bien impeccable ! Contactez votre conseillère dès aujourd'hui !

La presente annonce immobiliere vise 4 lots situés dans une copropriété de 131 lots au total et ne faisant l'objet d'aucune procédure en cours citée à l'article L. 721-1 du code de la construction et de l'habitation. Montant moyen mensuel de charges déclaré par le vendeur : 140¤ par mois (soit 1680 ¤ annuel). Honoraires d'agence à la charge du vendeur.
Information d'affichage énergétique sur ce bien : classe ENERGIE B indice 101 et classe CLIMAT A indice 3. Les informations sur les risques auxquels ce bien est exposé, y compris l'obligation légale de débroussaillement, sont disponibles sur le site Géorisques : http://www.georisques.gouv.fr.
La présente annonce immobilière a été rédigée sous la responsabilité éditoriale de Mme Mélanie Jolivet mandataire indépendant en immobilier (sans détention de fonds), agent commercial de la SAS I@D France immatriculé au RSAC de Chartres sous le numéro 914117734, titulaire de la carte de démarchage immobilier pour le compte de la société I@D France SAS.
Informations LOI ALUR :
Soumis au régime de copropriété.
Nombre de lots : 131.
Quote part annuelle(moyenne) : 1680 euros.
Honoraires charge vendeur. (gedeon_6727_32309846)
Voir plus

Référence: 1906217
Bien en copropriété. Nombre de lots : 131. Charges de copropriété : 1680 €.
Honoraires à la charge du vendeur.
DPE
A
B
C
D
E
F
G
GES
A
B
C
D
E
F
G

Prêt immobilier

Vous souhaitez connaître votre capacité d’emprunt et trouver le meilleur crédit immobilier ?
Réaliser une simulation gratuite

Photo 1 - Appartement à CHARTRES
Photo 1
Photo 2 - Appartement à CHARTRES
Photo 2
Photo 3 - Appartement à CHARTRES
Photo 3
Photo 4 - Appartement à CHARTRES
Photo 4
Photo 5 - Appartement à CHARTRES
Photo 5
Photo 6 - Appartement à CHARTRES
Photo 6
Photo 7 - Appartement à CHARTRES
Photo 7
Photo 8 - Appartement à CHARTRES
Photo 8
Photo 9 - Appartement à CHARTRES
Photo 9
Ce site est protégé par reCAPTCHA la Politique de confidentialité et les Conditions d’utilisation de Google s’appliquent.
Obtenir un prêt immobilier au meilleur taux ?

En poursuivant votre navigation sans modifier vos paramètres, vous acceptez l'utilisation de cookies susceptibles de réaliser des statistiques de visite. Cliquez ici pour plus d'informations