Bénéficiez des services de nos partenaires locaux soigneusement sélectionnés
pour vous accompagner dans votre parcours d'achat immobilier

Appartement 103m² à neuilly-sur-seine

— Neuilly-Sur-Seine 92200 —
824 000 €
103 m²
4 pièces
ascenseur

Nos partenaires locaux
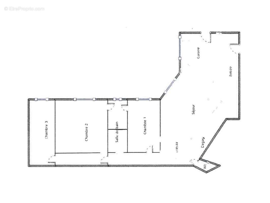
En plein coeur des Sablons, au pied de la place du Marché et de la rue Madeleine Michelis, des transports de la ligne 1 (Les Sablons), Fair and Square Immobilier vous propose un appartement familial au sein d'une copropriété de standing. Sectorisation Madeleine Michelis, Collège et Lycée Pasteur.

D'une superficie de 103 m² Carrez, ce bel appartement séduit par son plan parfaitement optimisé. Il comprend une entrée, un séjour, une cuisine indépendante avec possibilité d'ouverture sur la pièce de vie, trois chambres, une salle d'eau avec possibilité de créer une seconde, un WC invités et de nombreux rangements.

Une cave de 10 m² complète ce bien.

Honoraires inclus de 4.5% TTC à la charge de l'acquéreur. Prix hors honoraires 788 516 €. Dans une copropriété de 22 lots. Aucune procédure n'est en cours. Classe énergie D, Classe climat D Montant estimé des dépenses annuelles d'énergie pour un usage standard : entre 1700.00 € et 2340.00 € sur les années 2021, 2022 et 2023 (abonnements compris). Les informations sur les risques auxquels ce bien est exposé sont disponibles sur le site Géorisques : georisques.gouv.fr.
Voir plus

Référence: VA3521-EYEL
Bien en copropriété. Nombre de lots : 22.
Honoraires d'agence de 4.5% à la charge de l'acquéreur
Barème des honoraires
DPE
A
B
C
D
E
F
G
GES
A
B
C
D
E
F
G

Prêt immobilier

Vous souhaitez connaître votre capacité d’emprunt et trouver le meilleur crédit immobilier ?
Réaliser une simulation gratuite

Appartement à NEUILLY-SUR-SEINE
Appartement à NEUILLY-SUR-SEINE
Appartement à NEUILLY-SUR-SEINE
Appartement à NEUILLY-SUR-SEINE
Appartement à NEUILLY-SUR-SEINE
Appartement à NEUILLY-SUR-SEINE
Appartement à NEUILLY-SUR-SEINE
Appartement à NEUILLY-SUR-SEINE
Appartement à NEUILLY-SUR-SEINE
Ce site est protégé par reCAPTCHA la Politique de confidentialité et les Conditions d’utilisation de Google s’appliquent.
Obtenir un prêt immobilier au meilleur taux ?

En poursuivant votre navigation sans modifier vos paramètres, vous acceptez l'utilisation de cookies susceptibles de réaliser des statistiques de visite. Cliquez ici pour plus d'informations