Bénéficiez des services de nos partenaires locaux soigneusement sélectionnés
pour vous accompagner dans votre parcours d'achat immobilier

Maison familiale spacieuse à kembs dans environnement calme

— Kembs 68680 —
429 900 €
144 m² / 6 m²
6 pièces
parkingbalcon/terrassejardin

Nos partenaires locaux
Maison familiale spacieuse à Kembs dans environnement calme
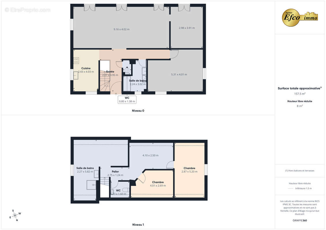
Située à Kembs, dans une rue secondaire au calme, cette belle maison familiale offre de généreux volumes et un cadre de vie agréable, idéal pour une famille. Édifiée sur un terrain arboré de 5,59 ares, elle développe une surface habitable d’environ 144 m2.
Au rez-de-chaussée, vous découvrirez un hall d’entrée accueillant, une cuisine séparée, un beau et vaste séjour lumineux, deux chambres, une salle de bain ainsi qu’un WC indépendant.
Le premier étage se compose de trois chambres supplémentaires, dont une chambre avec salle d’eau privative, ainsi qu’un espace de jeux pouvant également faire office de bureau ou de salle de loisirs.
La maison dispose d’un sous-sol complet comprenant une buanderie, plusieurs espaces caves offrant de nombreux rangements, et un garage pouvant accueillir deux véhicules.
Le chauffage est assuré par une installation au fioul avec radiateurs.
À l’extérieur, vous profiterez d’une agréable terrasse et d’un bel espace de verdure, parfait pour les moments de détente en famille ou entre amis.
Une maison aux nombreux atouts, alliant calme, confort et fonctionnalité.
L'agence Efco immo se fera un plaisir de vous faire découvir cette maison ! Pour cela contactez-nous !
Voir plus

Référence: 479
Honoraires à la charge du vendeur.
Barème des honoraires
DPE
A
B
C
D
E
F
G
GES
A
B
C
D
E
F
G

Prêt immobilier

Vous souhaitez connaître votre capacité d’emprunt et trouver le meilleur crédit immobilier ?
Réaliser une simulation gratuite

Maison à KEMBS
Maison à KEMBS
Maison à KEMBS
Maison à KEMBS
Maison à KEMBS
Maison à KEMBS
Maison à KEMBS
Maison à KEMBS
Maison à KEMBS
Maison à KEMBS
Maison à KEMBS
Maison à KEMBS
Maison à KEMBS
Maison à KEMBS
Maison à KEMBS
Maison à KEMBS
Maison à KEMBS
Ce site est protégé par reCAPTCHA la Politique de confidentialité et les Conditions d’utilisation de Google s’appliquent.
Obtenir un prêt immobilier au meilleur taux ?

En poursuivant votre navigation sans modifier vos paramètres, vous acceptez l'utilisation de cookies susceptibles de réaliser des statistiques de visite. Cliquez ici pour plus d'informations