Bénéficiez des services de nos partenaires locaux soigneusement sélectionnés
pour vous accompagner dans votre parcours d'achat immobilier

Dernier étage terrasse 4 pièces elancourt (78990)

— Elancourt 78990 —
399 000 €
100 m²
4 pièces
ascenseur

Nos partenaires locaux
(78990) ÉLANCOURT - DERNIER ETAGE - TERRASSE - ASCENSEUR - EXCELLENT ÉTAT - EXPOSITION SUD -

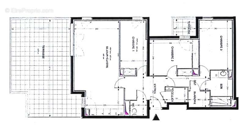
Comme une maison sur le toit : dernier étage, 40m² de terrasse plein sud et aucun vis-à-vis à Elancourt (78990) !
Découvrez ce superbe T4 de 87,7 m² en excellent état (normes BBC, ascenseur) situé au 3ème et dernier étage d'une résidence récente et prisée de 2019. Ses atouts majeurs vous offrent une qualité de vie incomparable :

T4 Lumineux : 3 chambres, séjour avec cuisine US totalement meublée et équipée.

Les + : buanderie, salle de douche à l'italienne, WC séparé.

L'Exceptionnel : une terrasse de 40 m² exposé Sud pour vos dîners et moments de détente.

Le Confort : nombreuses améliorations (domotique, moustiquaires).

Vous n'aurez qu'à poser vos valises ! Ce bien rare est complété par une cave et, en sus du prix, deux places de parking en sous-sol.

Imaginez vos étés sur cette terrasse ensoleillée...

Coup de cœur assuré ! Contactez-nous rapidement pour organiser votre visite privée. Nombre de lots de la copropriété: 176, Montant moyen de la quote-part annuelle de charges (budget prévisionnel) : 4080€ soit 340€ par mois. Les honoraires d'agence sont à la charge de l'acquéreur, soit 4,45% TTC du prix hors honoraires.
Les informations sur les risques auxquels ce bien est exposé sont disponibles sur le site Géorisques : www. georisques. gouv. fr.

Contactez Dorothée DAVIS Entrepreneur Individuel, Agent commercial OptimHome (RSAC N°853 974 350 Greffe de EVRY COURCOURONNES) [Coordonnées masquées] (réf. 598331 )
Voir plus

Référence: 830037195812
Bien en copropriété. Nombre de lots : 176. Charges de copropriété : 340 €.
DPE
A
B
C
D
E
F
G
GES
A
B
C
D
E
F
G

Prêt immobilier

Vous souhaitez connaître votre capacité d’emprunt et trouver le meilleur crédit immobilier ?
Réaliser une simulation gratuite

Appartement à ELANCOURT
Appartement à ELANCOURT
Appartement à ELANCOURT
Appartement à ELANCOURT
Appartement à ELANCOURT
Appartement à ELANCOURT
Appartement à ELANCOURT
Appartement à ELANCOURT
Appartement à ELANCOURT
Appartement à ELANCOURT
Appartement à ELANCOURT
Appartement à ELANCOURT
Appartement à ELANCOURT
Appartement à ELANCOURT
Appartement à ELANCOURT
Appartement à ELANCOURT
Appartement à ELANCOURT
Appartement à ELANCOURT
Appartement à ELANCOURT
Ce site est protégé par reCAPTCHA la Politique de confidentialité et les Conditions d’utilisation de Google s’appliquent.
Obtenir un prêt immobilier au meilleur taux ?

En poursuivant votre navigation sans modifier vos paramètres, vous acceptez l'utilisation de cookies susceptibles de réaliser des statistiques de visite. Cliquez ici pour plus d'informations