Bénéficiez des services de nos partenaires locaux soigneusement sélectionnés
pour vous accompagner dans votre parcours d'achat immobilier

Levallois-appartement t3 avec balcons

— Levallois-Perret 92300 —
670 000 €
73 m²
3 pièces
parkingbalcon/terrasse

Nos partenaires locaux
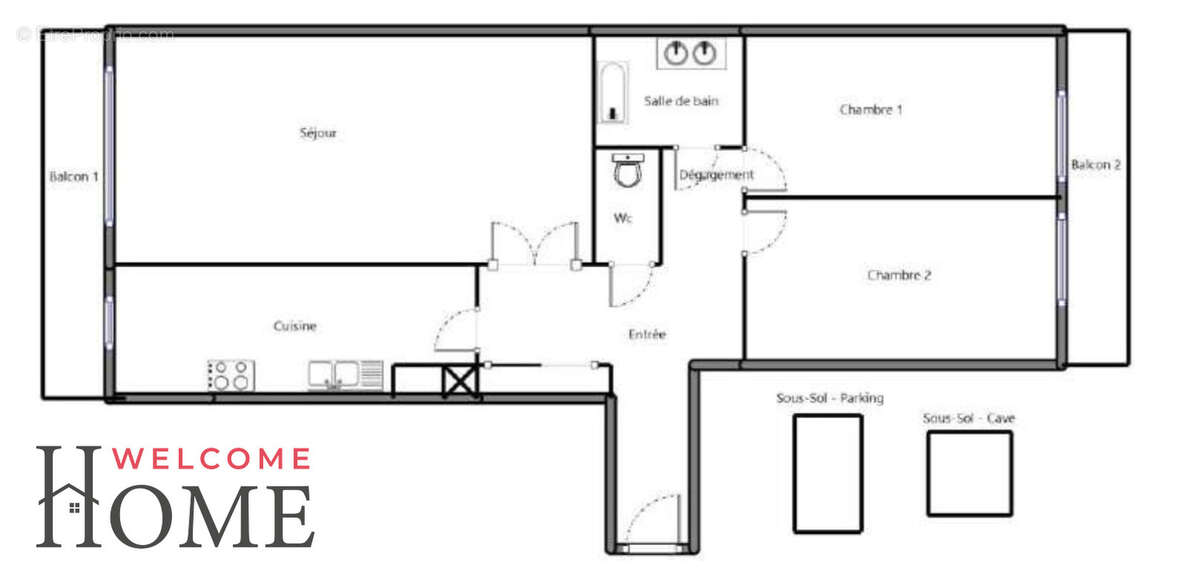
L’agence Welcome Home et Nicolas DELIVET vous présente en exclusivité : À Levallois-Perret à proximité de la place Jean Zay. Nous vous proposons cet appartement de 72,31 m2 Loi Carrez + 2 balcons de 7,90m2 et 4,90m2 situé au 1er étage au calme, entièrement sur cour, avec ascenseur d’un immeuble récent de standing, parfaitement entretenu.
Il se compose comme suit :

Une entrée avec placard desservant les différents espaces,
Un grand séjour s’ouvrant sur un balcon de 7,90m2 ,
Une cuisine indépendante qu’il est possible d’ouvrir sur le séjour,
Un WC indépendant,
Un dégagement nuit,
Deux belles chambres de plus de 12m2 avec placard donnant sur un balcon,
Une salle de bains.

À cet ensemble s’ajoutent :

Deux balcons totalisant 12,80 m2,
Une cave, parfaite pour le stockage,
Un emplacement de parking pour votre confort au quotidien.

Cet appartement séduit par sa distribution intelligente, ses beaux extérieurs et son calme. Le tout dans un immeuble où l’entretien est irréprochable.
Le bien est situé au pied de tous les commerces (boulangeries, médecins, pharmacies, restaurants, bars, supermarchés, etc…). Métro Pont de Levallois à 10 minutes, Gare à 5 minutes. Bus à proximité immédiate. Informations copropriété :
Nombre de Lots : 314 Nombre d’appartements : 105 Charges annuelles : 2239,88 €
Taxes Foncières : 1530 € DPE réalisé le 10 décembre 2025. Consommation D : 202 KWh/m2. An. Émissions B : 6 kg CO2/m2. An. Estimations coûts annuels d’énergie. Entre 1160 € et 1600 €. Prix moyens des énergies indexés su les années 2021, 2022 et 2023 (abonnement compris). Prix du bien : 670.000€ honoraires inclus. 650.000€ hors honoraires. 20.000€ TTC à la charge de l’acquéreur.
Les informations sur les risques auxquels ce bien est exposé sont disponibles sur le site Géorisques : http://www.georisques.gouv.fr Nous sommes joignable 7j/7 au [Coordonnées masquées].
Voir plus

Référence: 142
Bien en copropriété. Nombre de lots : 105. Charges de copropriété : 2239 €.
Honoraires d'agence de 3.08% à la charge de l'acquéreur
Barème des honoraires
DPE
A
B
C
D
E
F
G
GES
A
B
C
D
E
F
G

Prêt immobilier

Vous souhaitez connaître votre capacité d’emprunt et trouver le meilleur crédit immobilier ?
Réaliser une simulation gratuite

Appartement à LEVALLOIS-PERRET
Appartement à LEVALLOIS-PERRET
Appartement à LEVALLOIS-PERRET
Appartement à LEVALLOIS-PERRET
Appartement à LEVALLOIS-PERRET
Appartement à LEVALLOIS-PERRET
Appartement à LEVALLOIS-PERRET
Appartement à LEVALLOIS-PERRET
Appartement à LEVALLOIS-PERRET
Appartement à LEVALLOIS-PERRET
Appartement à LEVALLOIS-PERRET
Appartement à LEVALLOIS-PERRET
Appartement à LEVALLOIS-PERRET
Appartement à LEVALLOIS-PERRET
Appartement à LEVALLOIS-PERRET
Appartement à LEVALLOIS-PERRET
Appartement à LEVALLOIS-PERRET
Appartement à LEVALLOIS-PERRET
Appartement à LEVALLOIS-PERRET
Appartement à LEVALLOIS-PERRET
Appartement à LEVALLOIS-PERRET
Appartement à LEVALLOIS-PERRET
Appartement à LEVALLOIS-PERRET
Ce site est protégé par reCAPTCHA la Politique de confidentialité et les Conditions d’utilisation de Google s’appliquent.
Obtenir un prêt immobilier au meilleur taux ?

En poursuivant votre navigation sans modifier vos paramètres, vous acceptez l'utilisation de cookies susceptibles de réaliser des statistiques de visite. Cliquez ici pour plus d'informations