Bénéficiez des services de nos partenaires locaux soigneusement sélectionnés
pour vous accompagner dans votre parcours d'achat immobilier

6 pièces à rénover - doly - villiers - 75008 paris

— Paris-8e 75008 —
1 990 000 €
242 m²
6 pièces

Nos partenaires locaux
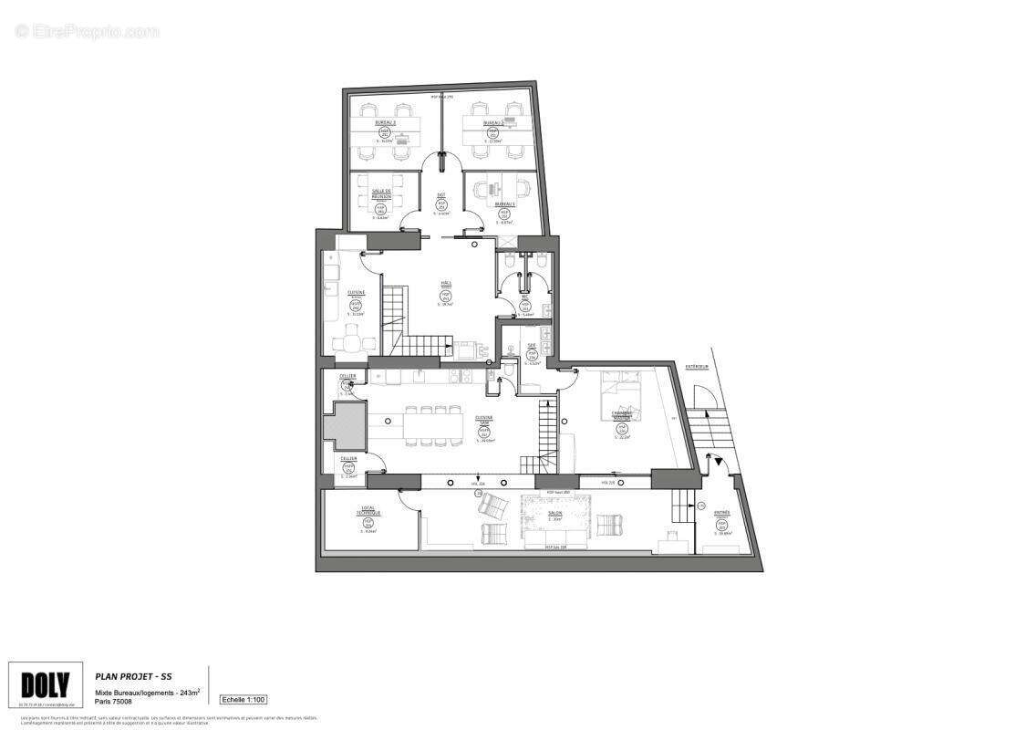
À proximité immédiate du boulevard Haussmann, à deux pas du parc Monceau, dans un secteur central et très recherché de la rive droite, DOLY vous présente ce local de 243 m² répartis comme suit : 56 m² en rez-de-chaussée et 187 m² en souplex, dont 35 m² sous verrière.

Situé dans la cour d'un immeuble de standing avec gardienne, au cœur du 8e arrondissement, il bénéficie d'un environnement calme et confidentiel.

Actuellement à usage commercial, ce bien peut être transformé en usage mixte en le scindant en deux duplex :
- bureaux accessibles par l'entrée principale dans la cour ( parties en noir et blanc sur les plans )
- habitation par une deuxième entrée en retrait de la cour ( parties en 3D sur les plans )

En images les plans actuels, les plans après rénovation ainsi qu'une vidéo de projection de la partie habitation.

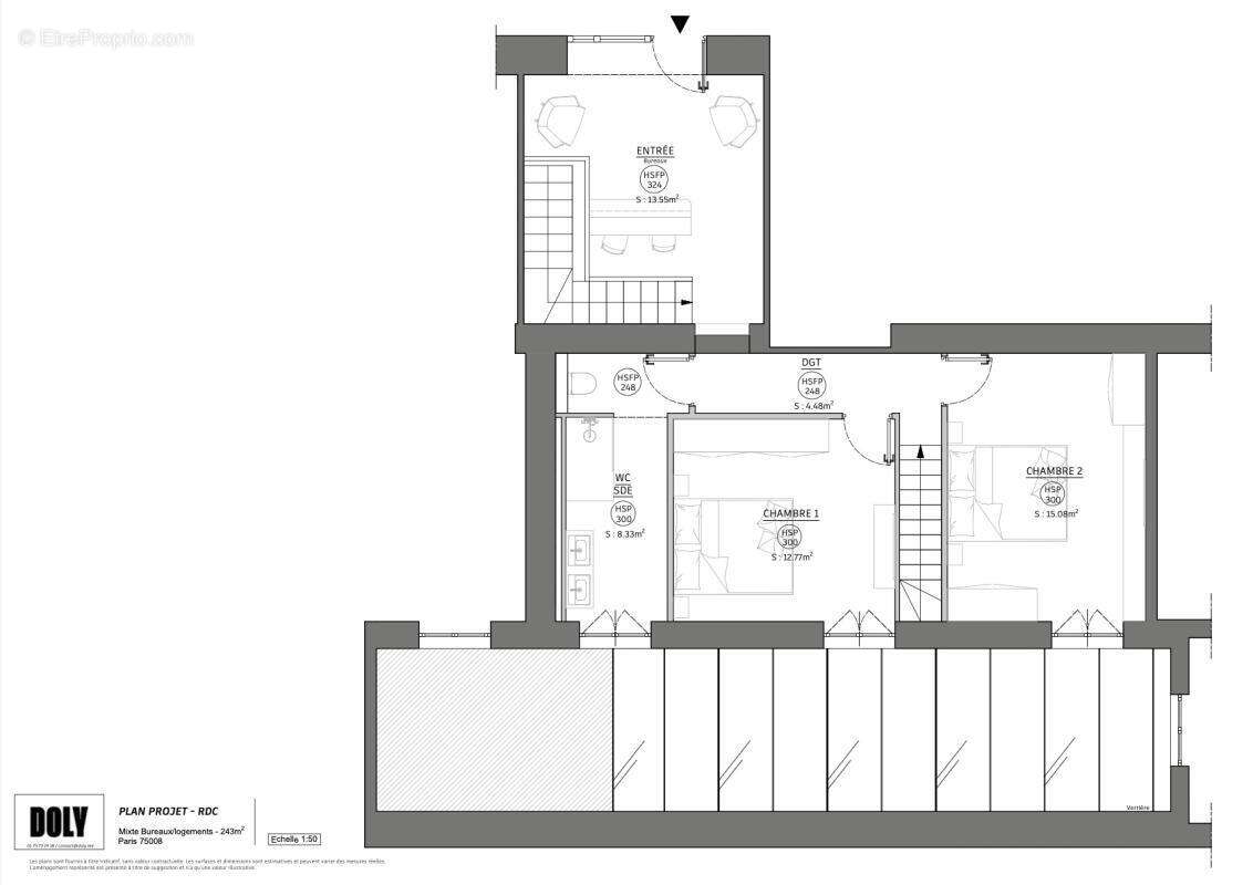
Côté habitation, en souplex , un salon sous verrière, une salle-à-manger avec cuisine équipée, une suite parentale avec salle de bains et un toilette indépendant.
Au rez-de-chaussée , deux chambres, une salle de bains avec douche et un toilette indépendant

Les bureaux en souplex, accessibles par l'espace d'accueil en rez-de-chaussée, se composent d'une salle d'attente, de quatre espaces de travail, d'une cuisine et de deux WC.

Verrière neuve et système de ventilation récemment rénové.
Voir plus

Référence: DOM25266-11
Bien en copropriété. Nombre de lots : 23. Charges de copropriété : 330 €.
Honoraires d'agence de 4.52% à la charge de l'acquéreur
DPE
A
B
C
D
E
F
G
GES
A
B
C
D
E
F
G

Prêt immobilier

Vous souhaitez connaître votre capacité d’emprunt et trouver le meilleur crédit immobilier ?
Réaliser une simulation gratuite

Appartement à PARIS-8E
Appartement à PARIS-8E
Appartement à PARIS-8E
Appartement à PARIS-8E
Appartement à PARIS-8E
Appartement à PARIS-8E
Appartement à PARIS-8E
Ce site est protégé par reCAPTCHA la Politique de confidentialité et les Conditions d’utilisation de Google s’appliquent.
Obtenir un prêt immobilier au meilleur taux ?

En poursuivant votre navigation sans modifier vos paramètres, vous acceptez l'utilisation de cookies susceptibles de réaliser des statistiques de visite. Cliquez ici pour plus d'informations