Bénéficiez des services de nos partenaires locaux soigneusement sélectionnés
pour vous accompagner dans votre parcours d'achat immobilier

Quartier de l’île, martigues – 2 pièces loué, rentabilité immédiate

— Martigues 13500 —
146 000 €
32 m²
2 pièces
balcon/terrasse

Nos partenaires locaux
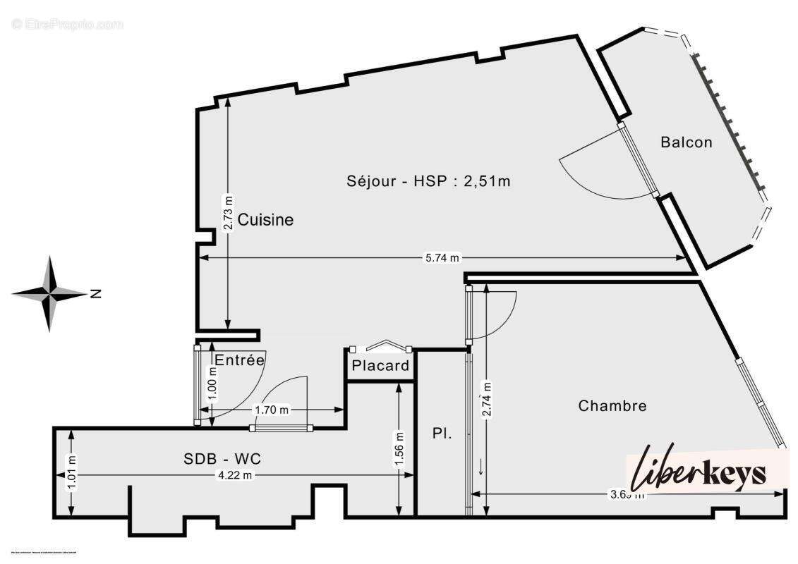
Liberkeys vous propose, en exclusivité à Martigues, ce deux-pièces de 31 m² Carrez avec balcon et vue sur le canal, situé dans une petite copropriété de 4 lots, bien entretenue avec cachet.
Nouveau prix pour un repositionnement attractif sur le marché.
Déjà loué 750 € charges comprises (bail en cours à tacite reconduction), ce bien constitue une opportunité locative clé en main, offrant rentabilité immédiate et gestion simplifiée.

L'appartement se compose d'une entrée, d'une pièce de vie lumineuse de 15 m² ouverte sur un balcon de 2 m², d'une chambre de 10 m² et d'une salle de bains de 4 m².

Atouts investisseurs :
Revenu locatif existant : 750 € CC / mois
Charges limitées : 209 €/semestre
Taxe foncière maîtrisée : 504 €/an
Quartier recherché et animé, avec forte demande locative
Localisation premium : centre-ville, commerces, restaurants, à proximité et plages à 15 minutes
Un placement sécurisé dans une ville attractive aux portes de la Côte Bleue.

Ce bien vous plaît ? Visitez-le virtuellement en 3D sur le site de Liberkeys ou contactez directement votre conseillère. Farzana Moula, agent commercial immatriculé au RSAC de Salon-de-Provence sous le numéro 790 648 562. Référence annonce : DOM22492. Date de réalisation du diagnostic : 15/05/2009. Les honoraires sont à la charge du vendeur.
Voir plus

Référence: DOM22492
Bien en copropriété. Nombre de lots : 4. Charges de copropriété : 35 €.
Honoraires à la charge du vendeur.
DPE
A
B
C
D
E
F
G
GES
A
B
C
D
E
F
G

Prêt immobilier

Vous souhaitez connaître votre capacité d’emprunt et trouver le meilleur crédit immobilier ?
Réaliser une simulation gratuite

Appartement à MARTIGUES
Appartement à MARTIGUES
Appartement à MARTIGUES
Appartement à MARTIGUES
Appartement à MARTIGUES
Appartement à MARTIGUES
Appartement à MARTIGUES
Appartement à MARTIGUES
Appartement à MARTIGUES
Ce site est protégé par reCAPTCHA la Politique de confidentialité et les Conditions d’utilisation de Google s’appliquent.
Obtenir un prêt immobilier au meilleur taux ?

En poursuivant votre navigation sans modifier vos paramètres, vous acceptez l'utilisation de cookies susceptibles de réaliser des statistiques de visite. Cliquez ici pour plus d'informations