Bénéficiez des services de nos partenaires locaux soigneusement sélectionnés
pour vous accompagner dans votre parcours d'achat immobilier

Lumineux 3 pièces traversant 63,28 m² + garage fermé - noyal-chatillon / rennes - proximité brequigny

— Noyal-Chatillon-Sur-Seiche 35230 —
118 750 €
64 m²
3 pièces
parking

Nos partenaires locaux
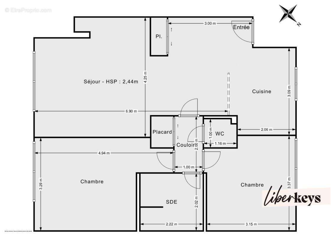
Je vous propose ce 3 PIECES - 2 CHAMBRES, traversant de 63,28 m² Carrez, situé "Le Bois Harel" (Noyal-Châtillon-sur-Seiche) aux portes du quartier Bréquigny à RENNES.
Un appartement lumineux, au plan efficace, vendu avec un grand garage fermé
Idéal pour une résidence principale ou un investissement locatif.

Les ATOUTS du bien
- AGENCEMENT : Plan simple avec peu de perte de place : entrée sur séjour/cuisine d'env. 32 m², 2 chambres (≈ 13,05 m² et 9,90 m²), salle d'eau, WC indépendants, placard.
- LUMINEUX : Traversant Sud/Nord
- GARAGE fermé (bâtiment annexe)
- ESPACES VERTS communs à la copropriété

Le CONFORT : menuiseries PVC double vitrage + volets roulants électriques, chauffage individuel par radiateurs à inertie programmables, ballon d'eau chaude 200 L, VMC simple-flux (collective).

Les DIAGNOSTICS & performances :
- DPE : D (249) / GES : B (7) — coûts annuels estimés 1 240 à 1 720 € (réf. 2021-2023)
- ERP : Disponible au dossier (informations publiques sur georisques.gouv.fr).
- Surface Carrez : 63,28 m² (surface au sol 64,96 m²)

COPROPRIETE : 12 lots dont 6 d'habitation – pas de procédure en cours – charges annuelles env. 760 € – taxe foncière 692 €.

À noter : Des visuels de "home-staging virtuel" peuvent être présentés pour aider à se projeter(mentionnés sur les images).

VISITES & contact : Aude CAMPILLO — [Coordonnées masquées] - réseau LIBERKEYS, filiale du Crédit Mutuel ARKEA – RSAC Rennes 945 077 964.

Vous avez un projet de vente ou êtes déjà en cours de vente ? J'ai des acquéreurs qualifiés et en recherche active. ESTIMATION & RAPPORT OFFERTS ET SANS ENGAGEMENT.
Voir plus

Référence: DOM22567
Bien en copropriété. Nombre de lots : 12. Charges de copropriété : 63 €.
Honoraires d'agence de 7.37% à la charge de l'acquéreur
DPE
A
B
C
D
E
F
G
GES
A
B
C
D
E
F
G

Prêt immobilier

Vous souhaitez connaître votre capacité d’emprunt et trouver le meilleur crédit immobilier ?
Réaliser une simulation gratuite

Appartement à NOYAL-CHATILLON-SUR-SEICHE
Appartement à NOYAL-CHATILLON-SUR-SEICHE
Appartement à NOYAL-CHATILLON-SUR-SEICHE
Appartement à NOYAL-CHATILLON-SUR-SEICHE
Appartement à NOYAL-CHATILLON-SUR-SEICHE
Appartement à NOYAL-CHATILLON-SUR-SEICHE
Appartement à NOYAL-CHATILLON-SUR-SEICHE
Appartement à NOYAL-CHATILLON-SUR-SEICHE
Appartement à NOYAL-CHATILLON-SUR-SEICHE
Appartement à NOYAL-CHATILLON-SUR-SEICHE
Appartement à NOYAL-CHATILLON-SUR-SEICHE
Appartement à NOYAL-CHATILLON-SUR-SEICHE
Appartement à NOYAL-CHATILLON-SUR-SEICHE
Appartement à NOYAL-CHATILLON-SUR-SEICHE
Appartement à NOYAL-CHATILLON-SUR-SEICHE
Ce site est protégé par reCAPTCHA la Politique de confidentialité et les Conditions d’utilisation de Google s’appliquent.
Obtenir un prêt immobilier au meilleur taux ?

En poursuivant votre navigation sans modifier vos paramètres, vous acceptez l'utilisation de cookies susceptibles de réaliser des statistiques de visite. Cliquez ici pour plus d'informations