Bénéficiez des services de nos partenaires locaux soigneusement sélectionnés
pour vous accompagner dans votre parcours d'achat immobilier

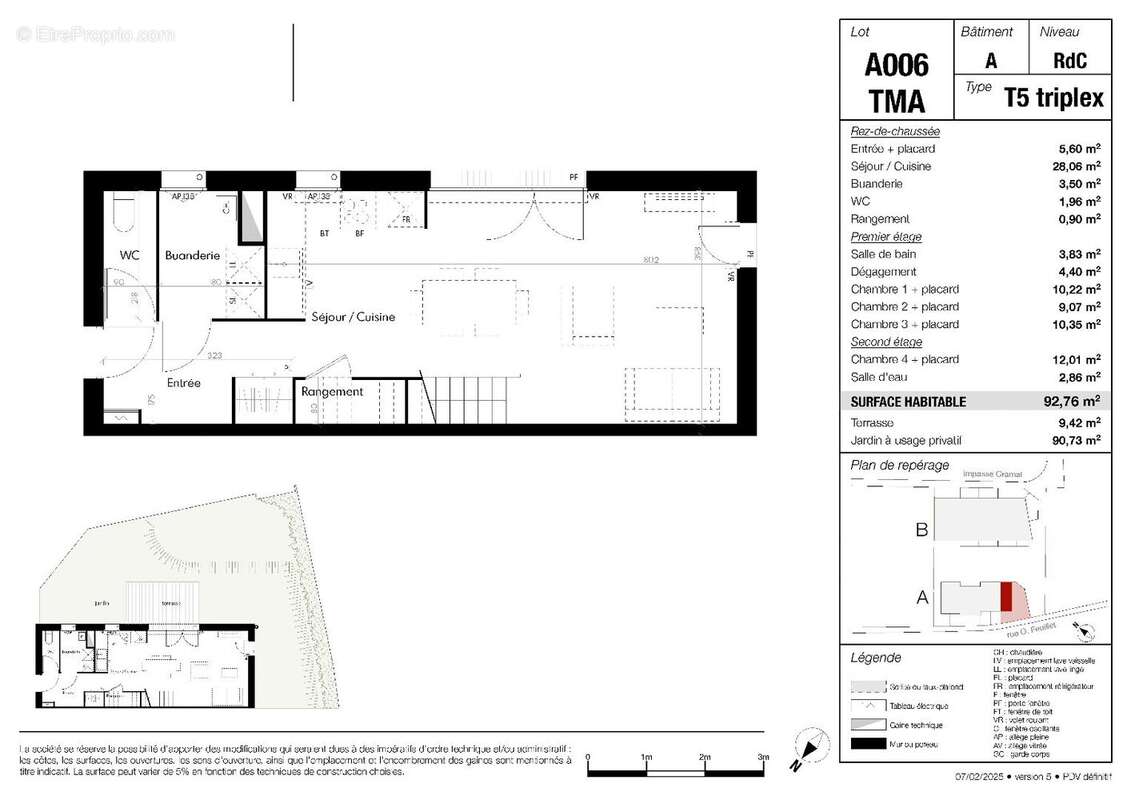
T5 triplex - toulouse la roseraie

— Toulouse 31200 —
459 000 €
93 m² / 91 m²
5 pièces
parkingbalcon/terrasse

Nos partenaires locaux
[A VISISTER DES MAINTENANT - ELIGIBLE ACCESSION] Découvrez ce ravissant appartement T5 triplex de plus de 93 m² situé au rez-de-chaussée d'une résidence sécurisée. Passez la porte du logement et découvrez au rez-de-chaussée une entrée avec placard, une buanderie, un WC séparé et un séjour/cuisine de plus de 28 m² ouvert sur un jardin privatif avec terrasse de plus de 98 m² exposé sud-ouest. Au premier étage, profitez de d'une salle de bain avec WC et de trois chambres avec placard d'environ 9m2. Enfin, le deuxième étage se compose d'une quatrième chambre de plus de 14 m² avec placard et sa salle d'eau. Ce logement T5 en triplex en vente dans le quartier de la Roseraie à Toulouse se situe au sein d'une résidence sécurisée équipée d'un système intratone. Vous bénéficiez également d'un accès au local vélos et de deux places de parking en sous-sol et une place de parking en extérieur. La résidence Tily profite d'un emplacement stratégique à seulement quelques minutes à pied du métro des Argoulets, de l'hypercentre toulousain et des bassins d'emploi de l'est de Toulouse. Profitez d'un environnement paisible dans un quartier idéalement situé. Boutiques, commerces de proximité, écoles, lieux de sorties et espaces verts, le quartier de la Roseraie ne manque pas d'atout pour satisfaire les familles. Surface CARREZ : 92.76 m²
Voir plus

Honoraires à la charge du vendeur.
Barème des honoraires

Prêt immobilier

Vous souhaitez connaître votre capacité d’emprunt et trouver le meilleur crédit immobilier ?
Réaliser une simulation gratuite

Appartement à TOULOUSE
Appartement à TOULOUSE
Appartement à TOULOUSE
Appartement à TOULOUSE
Appartement à TOULOUSE
Appartement à TOULOUSE
Appartement à TOULOUSE
Appartement à TOULOUSE
Appartement à TOULOUSE
Appartement à TOULOUSE
Appartement à TOULOUSE
Ce site est protégé par reCAPTCHA la Politique de confidentialité et les Conditions d’utilisation de Google s’appliquent.
Obtenir un prêt immobilier au meilleur taux ?

En poursuivant votre navigation sans modifier vos paramètres, vous acceptez l'utilisation de cookies susceptibles de réaliser des statistiques de visite. Cliquez ici pour plus d'informations