Bénéficiez des services de nos partenaires locaux soigneusement sélectionnés
pour vous accompagner dans votre parcours d'achat immobilier

5 pièces avec terrasse

— Rueil-Malmaison 92500 —
495 000 €
92 m²
5 pièces
parkingbalcon/terrasseascenseurpiscine

Nos partenaires locaux
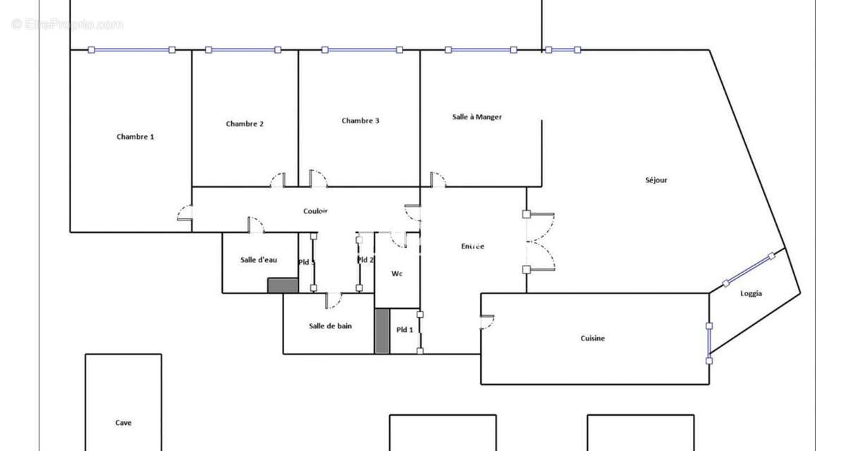
Dans une résidence calme et arborée dans le quartier des bords de seine à 2 pas de la piscine des closeaux, ce 5 pièces avec terrasse est idéal pour une famille. Il se compose d'une entrée, d'un séjour avec loggia, d'une salle à manger donnant sur une grande terrasse de 55 m², d'une grande cuisine, d'un couloir avec rangements qui dessert 3 chambres, une salle de bains, une salle d'eau et un wc.
Une cave et un double parking complètent ce bien.

Référence: 00722739
Bien en copropriété. Nombre de lots : 57. Charges de copropriété : 404 €.
Honoraires à la charge du vendeur.
Barème des honoraires
DPE
A
B
C
D
E
F
G
GES
A
B
C
D
E
F
G

Prêt immobilier

Vous souhaitez connaître votre capacité d’emprunt et trouver le meilleur crédit immobilier ?
Réaliser une simulation gratuite

Appartement à RUEIL-MALMAISON
Appartement à RUEIL-MALMAISON
Appartement à RUEIL-MALMAISON
Appartement à RUEIL-MALMAISON
Appartement à RUEIL-MALMAISON
Appartement à RUEIL-MALMAISON
Appartement à RUEIL-MALMAISON
Appartement à RUEIL-MALMAISON
Appartement à RUEIL-MALMAISON
Appartement à RUEIL-MALMAISON
Appartement à RUEIL-MALMAISON
Appartement à RUEIL-MALMAISON
Appartement à RUEIL-MALMAISON
Appartement à RUEIL-MALMAISON
Ce site est protégé par reCAPTCHA la Politique de confidentialité et les Conditions d’utilisation de Google s’appliquent.
Obtenir un prêt immobilier au meilleur taux ?

En poursuivant votre navigation sans modifier vos paramètres, vous acceptez l'utilisation de cookies susceptibles de réaliser des statistiques de visite. Cliquez ici pour plus d'informations