Propriété familiale avec deux maisons et terrain – le teil

— Le Teil 07400 —
274 000 €
254 m²
13 pièces

Propriété familiale sur 3 parcelles – deux maisons et terrain – Le Teil

Située au Teil, cette propriété familiale rare offre un grand potentiel pour un projet de rénovation, d'investissement locatif ou pour accueillir plusieurs générations.
L'ensemble se compose de trois parcelles distinctes, comprenant deux habitations indépendantes et un terrain attenant.

Maison n°1 – environ 79 m² (indépendante)
Implantée sur sa propre parcelle, cette maison est indépendante, mitoyenne par les garages, mais sans communication directe avec la grande maison.
Elle se compose de :

une terrasse avec une cave en dessous,

un garage et une chambre au sous-sol,

à l'étage : trois pièces, une cuisine et une salle d'eau.

Rénovation complète à prévoir, idéal pour un logement locatif, une maison d'amis ou un projet familial indépendant.

Maison principale – environ 175 m²
Spacieuse et lumineuse, cette grande maison offre de nombreuses possibilités d'aménagement :

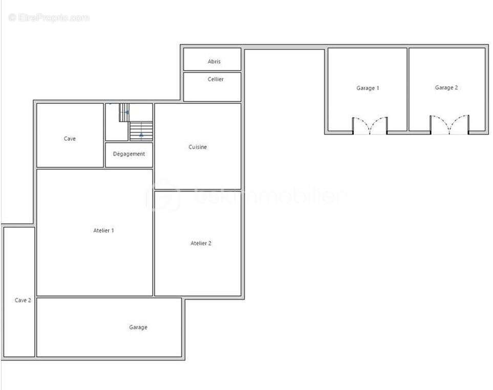
Sous-sol complet comprenant plusieurs caves et deux garages,

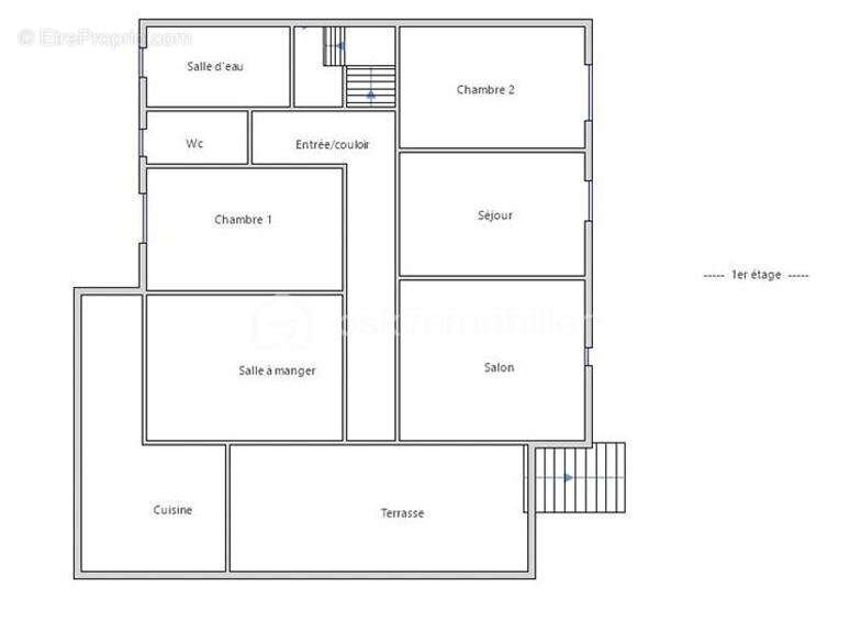
Premier étage : une cuisine, cinq pièces (salon, chambres, bureau...), une salle de bain et toilettes séparées,

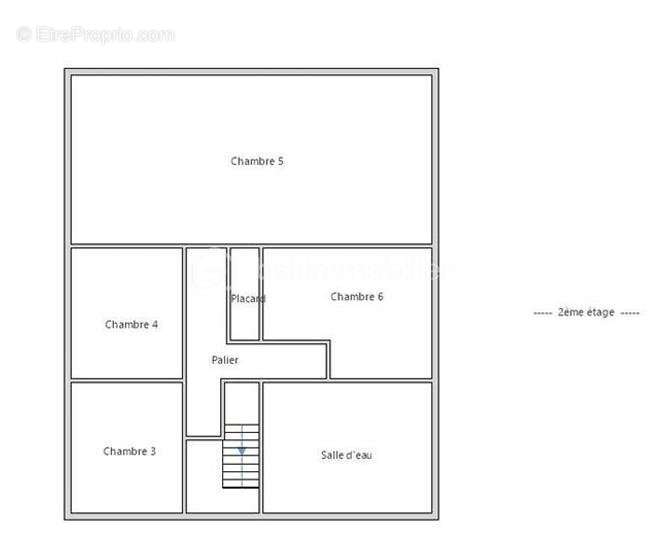
Deuxième étage mansardé : un vaste salon, trois chambres et une salle d'eau.

À rénover au goût du jour, cette maison offre un beau potentiel pour créer une grande demeure familiale.

Le terrain (3ᵉ parcelle)
Une troisième parcelle complète la propriété, offrant un espace extérieur supplémentaire idéal pour un jardin, un potager, ou un projet d'aménagement futur.

Les points forts
Ensemble composé de 3 parcelles distinctes

Deux habitations indépendantes

Des garages + caves spacieuses

Beaux volumes et nombreuses possibilités d'aménagement

Projet idéal pour une famille, un investisseur ou un artisan

Proche des commodités du Teil

Contactez moi – fort potentiel !

Cette annonce référence 309633 vous est présentée par votre agent commercial BSK Immobilier NESRINE FONTAINE (EI) immatriculé au RSAC de AUBENAS (07200) sous le numéro 88987251100015.

Prix du bien : 274 000,00 €
Prix du bien hors honoraires : 264 000,00 €
Honoraires TTC : 3,79 %
Les honoraires d'agence sont à la charge de l'acquéreur.

A propos de la copropriété :
Pas de procédure en cours.
Nombre de lots : 2
Charges prévisionnelles annuelles : 0,00 €

DPE vierge.

Les informations sur les risques auxquels ce bien est exposé sont disponibles sur le site Géorisques : www.georisques.gouv.fr
Voir plus

Référence: 309633
Bien en copropriété. Nombre de lots : 2.

Prêt immobilier

Vous souhaitez connaître votre capacité d’emprunt et trouver le meilleur crédit immobilier ?
Réaliser une simulation gratuite

Appartement à LE TEIL
Appartement à LE TEIL
Appartement à LE TEIL
Appartement à LE TEIL
Appartement à LE TEIL
Appartement à LE TEIL
Appartement à LE TEIL
Appartement à LE TEIL
Appartement à LE TEIL
Appartement à LE TEIL
Appartement à LE TEIL
Appartement à LE TEIL
Appartement à LE TEIL
Appartement à LE TEIL
Appartement à LE TEIL
Appartement à LE TEIL
Appartement à LE TEIL
Appartement à LE TEIL
Appartement à LE TEIL
Appartement à LE TEIL
Appartement à LE TEIL
Appartement à LE TEIL
Appartement à LE TEIL
Appartement à LE TEIL
Appartement à LE TEIL
Ce site est protégé par reCAPTCHA la Politique de confidentialité et les Conditions d’utilisation de Google s’appliquent.
Obtenir un prêt immobilier au meilleur taux ?

En poursuivant votre navigation sans modifier vos paramètres, vous acceptez l'utilisation de cookies susceptibles de réaliser des statistiques de visite. Cliquez ici pour plus d'informations