Bénéficiez des services de nos partenaires locaux soigneusement sélectionnés
pour vous accompagner dans votre parcours d'achat immobilier

Maison familiale 3 chambres avec jardin aménagé et garage

— Veretz 37270 —
224 000 €
78 m² / 299 m²
4 pièces
parkingbalcon/terrasse

Nos partenaires locaux
Située dans un quartier résidentiel calme et agréable, à 15 minutes de la Gare SNCF Saint Pierre des Corps et 20 minutes de Tours Centre, venez découvrir cette maison fonctionnelle et bien entretenue.

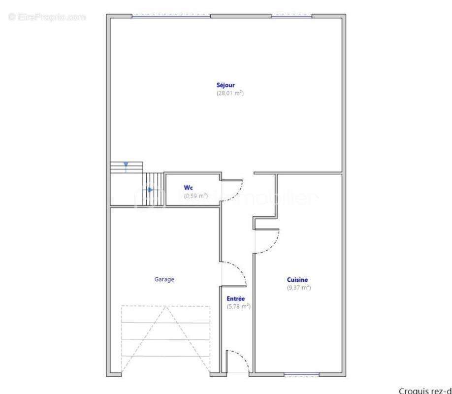
Au rez-de-chaussée, un couloir avec placard mène à la cuisine aménagée ainsi qu'au salon/séjour d'environ 28 m2, équipé d'un poêle à granulés. Cet espace de vie lumineux ouvre directement sur une terrasse et un jardin joliment arboré. WC et accès direct au garage carrelé.

À l'étage, trois belles chambres, salle de bains avec baignoire et douche, placard de rangement.

Jardin entièrement clos avec très belle cabane pour enfant, cabanon, pergola, carré potager.

Huisseries en double vitrage. Fenêtres de toit changées récemment. Store banne avec éclairage intégré. Adoucisseur d'eau.

À découvrir sans tarder ! Un seul numéro !

Cette annonce référence 314216 vous est présentée par votre agent commercial BSK Immobilier STEPHANIE VIEUGE (EI) immatriculé au RSAC de TOURS (37000) sous le numéro 84497947600026.

Prix du bien : 224 000,00 €
Les honoraires d'agence sont à la charge du vendeur.

A propos de la copropriété :
Pas de procédure en cours.
Nombre de lots : 6
Charges prévisionnelles annuelles : 0,00 €

A propos des performances énergétiques :
Date de réalisation du diagnostic énergétique : 05/12/2025
Score DPE : 240 kWhEP/m²/an
Score GES : 7 kgepCO2/m²/an
Montant estimé des dépenses annuelles d'énergie pour un usage standard : entre 1470.00 € et 2070.00 € par an. Prix moyens des énergies indexés sur l'année 2023 (abonnements compris).

Les informations sur les risques auxquels ce bien est exposé sont disponibles sur le site Géorisques : www.georisques.gouv.fr
Voir plus

Référence: 314216
Bien en copropriété. Nombre de lots : 6.
Honoraires à la charge du vendeur.
DPE
A
B
C
D
E
F
G
GES
A
B
C
D
E
F
G

Prêt immobilier

Vous souhaitez connaître votre capacité d’emprunt et trouver le meilleur crédit immobilier ?
Réaliser une simulation gratuite

Maison à VERETZ
Maison à VERETZ
Maison à VERETZ
Maison à VERETZ
Maison à VERETZ
Maison à VERETZ
Maison à VERETZ
Maison à VERETZ
Maison à VERETZ
Maison à VERETZ
Maison à VERETZ
Maison à VERETZ
Maison à VERETZ
Maison à VERETZ
Maison à VERETZ
Maison à VERETZ
Maison à VERETZ
Maison à VERETZ
Ce site est protégé par reCAPTCHA la Politique de confidentialité et les Conditions d’utilisation de Google s’appliquent.
Obtenir un prêt immobilier au meilleur taux ?

En poursuivant votre navigation sans modifier vos paramètres, vous acceptez l'utilisation de cookies susceptibles de réaliser des statistiques de visite. Cliquez ici pour plus d'informations