Bénéficiez des services de nos partenaires locaux soigneusement sélectionnés
pour vous accompagner dans votre parcours d'achat immobilier

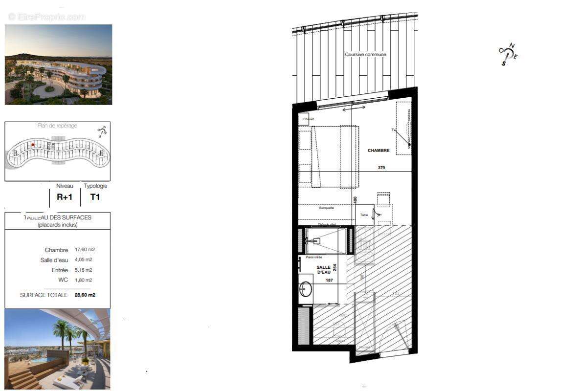
T1 lumineux de 29 m² au coeur du village naturiste du cap d'agde, avec place de parking

— Agde 34300 —
295 000 €
29 m²
1 pièce
parkingascenseurpiscine

Nos partenaires locaux
Idéalement situé au sein du Village Naturiste du Cap d'Agde, découvrez cet appartement de type 1,ce bien saura séduire une clientèle exigeante en quête d'un pied-à-terre raffiné ou d'un investissement patrimonial de qualité.
D'une superficie de 29 m², cet appartement se distingue par : Une pièce de vie lumineuse offrant de beaux volumes, pensée pour conjuguer fonctionnalité et bien-être au quotidien. Des prestations soignées, créant une atmosphère à la fois moderne et chaleureuse. Une salle d'eau entièrement équipée, alliant design et praticité.
Le stationnement étant un luxe dans ce secteur, ce bien est vendu avec une place de parking privative, garantissant sécurité et facilité d'accès toute l'année.
Profitez d'un accès immédiat aux plages, aux commerces et aux lieux de vie, tout en bénéficiant du calme de votre résidence. Ce bien correspond-il à vos critères de recherche (surface, standing, stationnement) ?
Prix : 295 000 euros (honoraires à la charge du vendeur) DPE en cours.
Pour visiter et vous accompagner dans votre projet, contactez Michel HORNECKER, au [Coordonnées masquées] ou, par courriel à [Coordonnées masquées].
Selon l'article L.561.5 du Code Monétaire et Financier, pour l'organisation de la visite, la présentation d'une pièce d'identité vous sera demandée.
Cette présente annonce a été rédigée sous la responsabilité éditoriale de Michel HORNECKER agissant sous le statut d'agent commercial immatriculé au RSAC BEZIERS 493044283 auprès de SAS PROPRIETES PRIVEES, au capital de 44 920 euros, ZAC LE CHÊNE FERRÉ - 44 ALLÉE DES CINQ CONTINENTS 44120 VERTOU; SIRET 487 624 777 00040, RCS Nantes. Carte
Professionnelle Transactions sur immeubles et fonds de commerce (T) et Gestion immobilière (G) n°CPI 44[Coordonnées masquées]10 388 délivrée par la CCI Nantes - Saint Nazaire. Compte séquestre n°3[Coordonnées masquées] BPA SAINT-SEBASTIEN-SUR-LOIRE (44230). Garantie GALIAN-SMABTP - 89 rue de la Boétie, 75008 Paris - n°28137 J pour 2 000 000 euros pour T et 120 000 euros pour G. Assurance responsabilité civile professionnelle par GALIAN-SMABTP n° de police 28137.J
Mandat réf : 432421 Le professionnel garantit et sécurise votre projet immobilier.
Copropriété de 125 lots - dont 122 lots habitation.().
Michel HORNECKER (EI) Agent Commercial - Numéro RSAC : BEZIERS 493044283 - .
Voir plus

Référence: 432421HKM
Bien en copropriété. Nombre de lots : 125.
Honoraires à la charge du vendeur.

Prêt immobilier

Vous souhaitez connaître votre capacité d’emprunt et trouver le meilleur crédit immobilier ?
Réaliser une simulation gratuite

Appartement à AGDE
Appartement à AGDE
Appartement à AGDE
Appartement à AGDE
Appartement à AGDE
Appartement à AGDE
Ce site est protégé par reCAPTCHA la Politique de confidentialité et les Conditions d’utilisation de Google s’appliquent.
Obtenir un prêt immobilier au meilleur taux ?

En poursuivant votre navigation sans modifier vos paramètres, vous acceptez l'utilisation de cookies susceptibles de réaliser des statistiques de visite. Cliquez ici pour plus d'informations