Appartement

— Ivry-Sur-Seine 94200 —
220 000 €
40 m²
2 pièces

94200 - IVRY-SUR-SEINE - EXCLUSIVITÉ -

IDEAL INVESTISSEUR - PREMIER ACHAT

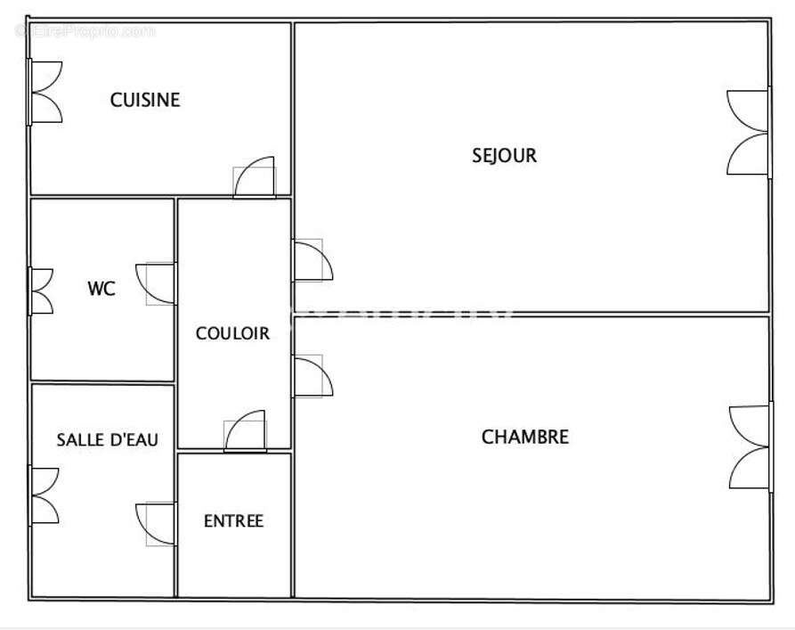
Dans le SECTEUR prisé PIERRE ET MARIE CURIE, à deux pas des commerces et des transports, effiCity, l'agence qui estime votre bien en ligne vous propose cet appartement situé au 2ᵉ et dernier étage et DERNIER ETAGE d'un immeuble ancien sans ascenseur. Cet espace CALME, LUMINEUX et SANS VIS A VIS, offre une surface de 38,09 m² loi Carrez. Il comprend un séjour parqueté avec une CHEMINEE, une chambre, une cuisine séparée, une salle d'eau et un WC indépendant. Une CAVE complète ce bien.

Ne laissez pas passer cette opportunité dans un emplacement recherché.
Les informations sur les risques auxquels ce bien est exposé sont disponibles sur le site Georisque : georisques. gouv. fr
Delphine Abisror - EI - est Agent Commercial mandataire en immobilier, immatriculé au Registre Spécial des Agents Commerciaux du Tribunal de Commerce de Créteil sous le n°793121856.
Siège social du mandant : effiCity, 48 avenue de Villiers - 75017 PARIS - Société par Actions Simplifiée, société au capital de 132 373,05 euros, immatriculée au RCS Paris 497 617 746 et titulaire de la Carte professionnelle CPI 75[Coordonnées masquées]02 025 - CCI Paris IDF - Caisse de Garantie : GALIAN Assurances 89 rue de la Boétie 75008 Paris
Voir plus

Référence: 201539
Bien en copropriété. Nombre de lots : 10. Charges de copropriété : 183 €.
Honoraires à la charge du vendeur.
Barème des honoraires
DPE
A
B
C
D
E
F
G
GES
A
B
C
D
E
F
G

Prêt immobilier

Vous souhaitez connaître votre capacité d’emprunt et trouver le meilleur crédit immobilier ?
Réaliser une simulation gratuite

Appartement à IVRY-SUR-SEINE
Appartement à IVRY-SUR-SEINE
Appartement à IVRY-SUR-SEINE
Appartement à IVRY-SUR-SEINE
Appartement à IVRY-SUR-SEINE
Appartement à IVRY-SUR-SEINE
Appartement à IVRY-SUR-SEINE
Ce site est protégé par reCAPTCHA la Politique de confidentialité et les Conditions d’utilisation de Google s’appliquent.
Obtenir un prêt immobilier au meilleur taux ?

En poursuivant votre navigation sans modifier vos paramètres, vous acceptez l'utilisation de cookies susceptibles de réaliser des statistiques de visite. Cliquez ici pour plus d'informations