Bénéficiez des services de nos partenaires locaux soigneusement sélectionnés
pour vous accompagner dans votre parcours d'achat immobilier

Appartement 4 pièces - 75m2 - chevigny saint sauveur - quartier buisson rond

— Quetigny 21800 —
149 000 €
75 m²
4 pièces
parking

Nos partenaires locaux
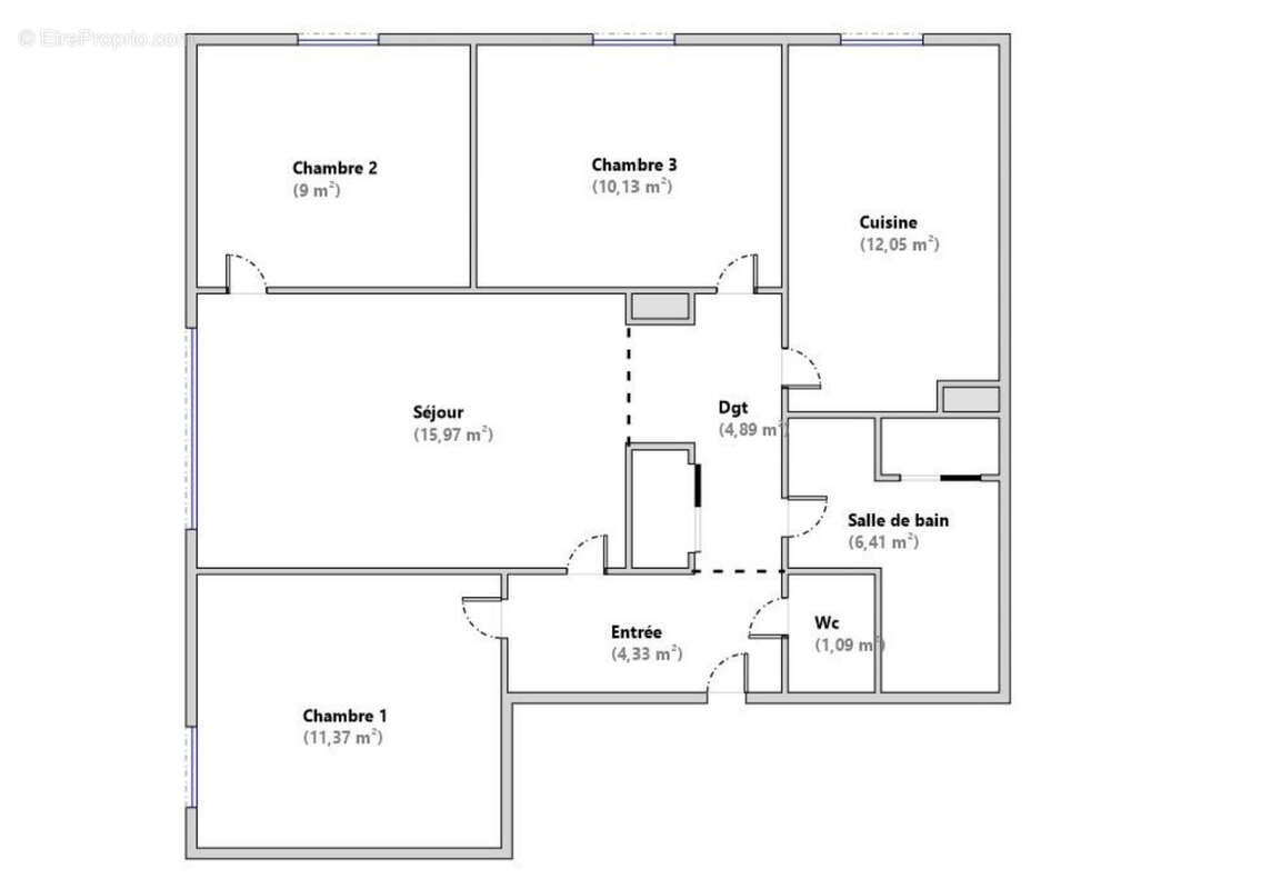
CHEVIGNY-SAINT-SAURVEUR T4 / 3 CHAMBRES 75 m2 Quartier calme Buisson Rond
Situé au cœur du quartier Buisson Rond, vous profiterez d’un cadre paisible, de nombreux espaces verts et d’un emplacement idéal à proximité de tous commerces, écoles et crèches, ainsi que des transports.
Venez découvrir cet agréable appartement de 4 pièces, situé au 3ᵉ étage sur 4 sans ascenseur, dans une copropriété calme et bien entretenue.
Cet appartement lumineux de 75 m2 se compose de :
Une entrée avec dégagement et placard
Un séjour lumineux
Une cuisine aménagée et équipée
3 chambres
Une salle de bains récente
WC séparés
Parking aisé dans la copropriété
Huisserie double vitrage PVC avec volets roulants
Dépendances : Une cave et un séchoir
La résidence a récemment bénéficié d’un ravalement avec isolation par l’extérieur.
Prix de vente : 149 000 € FAI (honoraires à la charge du vendeur) Pour tout renseignement et visite, contactez : ingrid guerin La Boutique de l’Immo
Informations complémentaires :
DPE : C (130 kWh/m2/an) - GES : C (27 kg CO₂/m2/an)
Estimation des dépenses annuelles : 800€ à 1130€ (référence 2023)
Diagnostics réalisés le 08/12/2025
Copropriété bien entretenue 121 lots d’habitation
Charges prévisionnelles : 212€/mois (inclus chauffage et eau chaude avec répartiteurs individuels)
Informations sur les risques disponibles sur : Géorisques
Voir plus

Référence: 113
Bien en copropriété.
Honoraires à la charge du vendeur.
Barème des honoraires
DPE
A
B
C
D
E
F
G
GES
A
B
C
D
E
F
G

Prêt immobilier

Vous souhaitez connaître votre capacité d’emprunt et trouver le meilleur crédit immobilier ?
Réaliser une simulation gratuite

Appartement à QUETIGNY
Appartement à QUETIGNY
Appartement à QUETIGNY
Appartement à QUETIGNY
Appartement à QUETIGNY
Appartement à QUETIGNY
Appartement à QUETIGNY
Appartement à QUETIGNY
Appartement à QUETIGNY
Appartement à QUETIGNY
Ce site est protégé par reCAPTCHA la Politique de confidentialité et les Conditions d’utilisation de Google s’appliquent.
Obtenir un prêt immobilier au meilleur taux ?

En poursuivant votre navigation sans modifier vos paramètres, vous acceptez l'utilisation de cookies susceptibles de réaliser des statistiques de visite. Cliquez ici pour plus d'informations