Bénéficiez des services de nos partenaires locaux soigneusement sélectionnés
pour vous accompagner dans votre parcours d'achat immobilier

Maison les angles 250 m2 avec piscine

— Les Angles 30133 —
658 000 €
250 m² / 1 036 m²
9 pièces
parkingbalcon/terrassejardinpiscine

Nos partenaires locaux
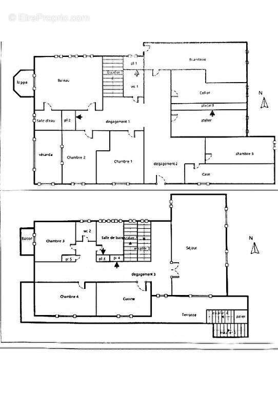
De nombreuses possibilités pour cette grande maison familiale d'environ 250m² proche de toutes les commodités, son beau terrain de 1000m² avec piscine 8x4 - bar bungalow - terrain de pétanque, pour profiter en famille ou amis ! Grand séjour lumineux avec cheminée donnant sur terrasse, 5 belles chambres ( dont 2 avec coin douche) et un bureau / 1 SDB et 1 salle d'eau / 2 WC / buanderie / cellier / cave. Peut convenir aussi pour une activité libérale / Gites ou RBNB / et Habitation facilement distincte. (voir plan) LES PLUS : Pompe à chaleur, Chauffe eau thermodynamique, piscine neuve. Benjamin GRAS - Agent Commercial - RSAC de Nîmes 439 527 417 Benjamin GRAS (EI) Agent Commercial - Numéro RSAC : 439 527 417 - Nîmes.
Voir plus

Référence: 5158
Honoraires à la charge du vendeur.
Barème des honoraires
DPE
A
B
C
D
E
F
G
GES
A
B
C
D
E
F
G

Prêt immobilier

Vous souhaitez connaître votre capacité d’emprunt et trouver le meilleur crédit immobilier ?
Réaliser une simulation gratuite

Maison à LES ANGLES
Maison à LES ANGLES
Maison à LES ANGLES
Maison à LES ANGLES
Maison à LES ANGLES
Maison à LES ANGLES
Maison à LES ANGLES
Maison à LES ANGLES
Maison à LES ANGLES
Maison à LES ANGLES
Maison à LES ANGLES
Maison à LES ANGLES
Ce site est protégé par reCAPTCHA la Politique de confidentialité et les Conditions d’utilisation de Google s’appliquent.
Obtenir un prêt immobilier au meilleur taux ?

En poursuivant votre navigation sans modifier vos paramètres, vous acceptez l'utilisation de cookies susceptibles de réaliser des statistiques de visite. Cliquez ici pour plus d'informations