Bénéficiez des services de nos partenaires locaux soigneusement sélectionnés
pour vous accompagner dans votre parcours d'achat immobilier

Appartement 47m² à paris-12e

— Paris-12e 75012 —
472 000 €
48 m²
3 pièces
balcon/terrasseascenseur

Nos partenaires locaux
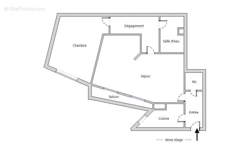
APPARTEMENT 3 PIECES 48M²- BALCON - 5EME ETAGE - BLD DE PICPUS NATIONCentury 21 Nation vous présente en exclusivité ce charmant trois-pièces de 48 m² avec balcon et cave. Exposé Sud-Est, il offre une belle luminosité tout au long de la journée.Il se compose d'un double séjour, d'une chambre (avec possibilité d'en créer une seconde, d'une cuisine séparé avec possibilité d'ouverture sur le séjour, d'une salle d'eau, d'un WC séparé et de rangements.Situé au 5 étage, à deux pas de la place de la Nation, cet appartement bénéficie d'un emplacement recherché, proche de tous commerces et transports.À visiter sans tarder.
Voir plus

Référence: 28043
Barème des honoraires
DPE
A
B
C
D
E
F
G
GES
A
B
C
D
E
F
G

Prêt immobilier

Vous souhaitez connaître votre capacité d’emprunt et trouver le meilleur crédit immobilier ?
Réaliser une simulation gratuite

Appartement à PARIS-12E
Appartement à PARIS-12E
Appartement à PARIS-12E
Appartement à PARIS-12E
Appartement à PARIS-12E
Appartement à PARIS-12E
Appartement à PARIS-12E
Appartement à PARIS-12E
Appartement à PARIS-12E
Appartement à PARIS-12E
Appartement à PARIS-12E
Appartement à PARIS-12E
Ce site est protégé par reCAPTCHA la Politique de confidentialité et les Conditions d’utilisation de Google s’appliquent.
Obtenir un prêt immobilier au meilleur taux ?

En poursuivant votre navigation sans modifier vos paramètres, vous acceptez l'utilisation de cookies susceptibles de réaliser des statistiques de visite. Cliquez ici pour plus d'informations