Bénéficiez des services de nos partenaires locaux soigneusement sélectionnés
pour vous accompagner dans votre parcours d'achat immobilier

Vente NUE PROPRIETE appartement 2/3 Pièces Résidence Cap de Nice

— Nice 06300 —
425 000 €
69 m² / 35 m²
2 pièces
parkingbalcon/terrassejardinascenseurpiscineaccès handicapé

Nos partenaires locaux
Nice Mont Boron - Cap De Nice
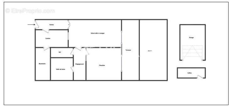
Dans luxueuse résidence avec gardien, et piscine, vente DE LA NUE PROPRIETE d'un appartement 1 tête : femme 84 ans. Pas de rente. Le vendeur conserve l'usufruit total de l'appartement, du cellier et du garage.
La vente porte sur trois lots dans cette copropriété.
- L'appartement, d'une surface de 69,28m2 loi carrez en rez-de-jardin avec terrasse de 23,50m2 et jardin de 35m2 avec pleine vue mer.
Il se compose d'une entrée, d'un séjour-salle à manger, d'une chambre, d'une cuisine indépendante, d'une buanderie, d'un dressing, d'une salle de bains, d'un W.C.
- Un cellier sur le même palier.
- Un garage simple.
Voir plus

Référence: 83354020
DPE
A
B
C
D
E
F
G
GES
A
B
C
D
E
F
G
Appartement à NICE
Appartement à NICE
Appartement à NICE
Appartement à NICE
Appartement à NICE
Appartement à NICE
Appartement à NICE
Appartement à NICE
Appartement à NICE
Appartement à NICE
Appartement à NICE
Appartement à NICE
Appartement à NICE
Appartement à NICE
Appartement à NICE
Appartement à NICE
Appartement à NICE
Appartement à NICE
Appartement à NICE
Appartement à NICE
Appartement à NICE
Appartement à NICE
Appartement à NICE
Appartement à NICE
Appartement à NICE
Appartement à NICE
Appartement à NICE
Appartement à NICE
Appartement à NICE
Appartement à NICE
Appartement à NICE
Appartement à NICE
Appartement à NICE
Appartement à NICE
Appartement à NICE
Appartement à NICE
Appartement à NICE
Géorisques

Les informations sur les risques auxquels ce bien est exposé sont disponibles sur le site Géorisques : www.georisques.gouv.fr

Ce site est protégé par hCaptcha Politique de confidentialité et Conditions d’utilisation s’appliquent.

En poursuivant votre navigation sans modifier vos paramètres, vous acceptez l'utilisation de cookies susceptibles de réaliser des statistiques de visite. Cliquez ici pour plus d'informations