Bénéficiez des services de nos partenaires locaux soigneusement sélectionnés
pour vous accompagner dans votre parcours d'achat immobilier

Maison 96m² à vichy

— Vichy 03200 —
212 000 €
96 m²
5 pièces
balcon/terrasse

Nos partenaires locaux
L'agence APPARTOIT vous présente en exclusivité :



Maison des années 80 vendue meublée, de 96m2.



Ce bien est composé comme suit :

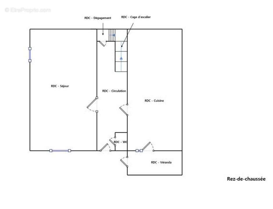
- au RDC : une cuisine aménagée, un salon-séjour, un WC indépendant

- au 1er étage : 2 chambres et une salle de bain

- au dernier étage, 2 chambres mansardées



Pas de gros travaux à prévoir - mais possibilité de valoriser le bien avec des travaux d'embellissement.



S'ajoutent : une cours et une terrasse carrelées et sous-sol carrelé également et exploité en buanderie et stockage.



Maison actuellement louée en bail meublé (depuis juin 2022, 850eurosCC), idéale pour un investissement locatif immédiat grâce à des locataires sérieux en place. Elle peut également devenir une résidence principale : le congé pour reprise pourra être donné dans les délais légaux, soit 3 mois avant l'échéance du bail)









Honoraires inclus de 6% TTC à la charge de l'acquéreur. Prix hors honoraires 200 000 euros. Classe énergie D, Classe climat D Montant estimé des dépenses annuelles d'énergie pour un usage standard : entre 1900.00 euros et 2630.00 euros sur les années 2021, 2022 et 2023 (abonnements compris). Les informations sur les risques auxquels ce bien est exposé sont disponibles sur le site Géorisques : georisques.gouv.fr.



Votre conseiller APPARTOIT : Sonia ROLLAND

Agent commercial (Entreprise individuelle)

RSAC 944395995
Voir plus

Référence: 844-APPARTOIT
Honoraires à la charge de l'acquéreur.
DPE
A
B
C
D
E
F
G
GES
A
B
C
D
E
F
G

Prêt immobilier

Vous souhaitez connaître votre capacité d’emprunt et trouver le meilleur crédit immobilier ?
Réaliser une simulation gratuite

Maison à VICHY
Maison à VICHY
Maison à VICHY
Maison à VICHY
Maison à VICHY
Maison à VICHY
Maison à VICHY
Maison à VICHY
Maison à VICHY
Ce site est protégé par reCAPTCHA la Politique de confidentialité et les Conditions d’utilisation de Google s’appliquent.
Obtenir un prêt immobilier au meilleur taux ?

En poursuivant votre navigation sans modifier vos paramètres, vous acceptez l'utilisation de cookies susceptibles de réaliser des statistiques de visite. Cliquez ici pour plus d'informations