Bénéficiez des services de nos partenaires locaux soigneusement sélectionnés
pour vous accompagner dans votre parcours d'achat immobilier

Voir tous les partenaires locaux

Paris 16ᵉ d'auteuil – local commercial / professionnel aménageable

— Paris-16e 75016 —
691 600 €
61 m²
3 pièces
ascenseur

Nos partenaires locaux
Votre assurance emprunteur
Faites appel à Denis pour vous accompagner dans votre assurance de prêt
06 09 24 11 24 ou cliquez-ici
Votre diagnostiqueur
Nous vous proposons différentes prestations : DPE , diagnostic amiante avant démolition, plomb , termites , gaz etc...
06 17 91 48 19 ou cliquez-ici
Votre déménageur
Déménagement national ou international ? Bénéficiez d'un accompagnement sur mesure à chaque étape.
04 78 97 33 43 ou cliquez-ici
Votre expert en revêtement
Vente, pose et rénovations de sols : accompagnement complet, qualité durable & finitions soignées - contactez nous au :
06 20 66 06 94 ou cliquez-ici
Votre concepteur créateur
Notre savoir faire vous assure une vrai expertise pour la conception de vos espaces de vie : dressings, cuisines, ect.
01 84 14 66 65 ou cliquez-ici
Votre déménageur parisien
Déménagements Pro et Particuliers - Monte meubles - Transports d'oeuvre d'art - Garde meuble
01 87 66 77 21 ou cliquez-ici

Voir tous les partenaires locaux

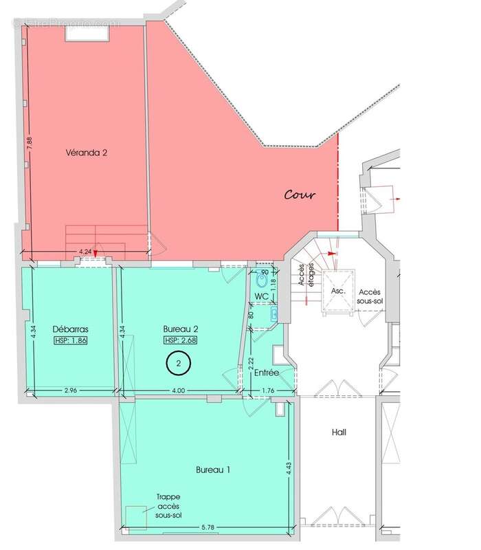
Situé rue Jean de la Fontaine, à proximité immédiate de l’avenue Mozart, ce local en rez-de-chaussée développe une surface de 62 m². Il est idéal pour l’exercice d’une profession libérale (avocats, médecins, etc.).
Le bien bénéficie d’une double exposition sur rue et sur jardin, ainsi que d’une grande véranda et d’un jardin à usage privatif, représentant une surface extérieure totale d’environ 60m².
Il se compose actuellement d’une entrée, de deux bureaux, d’un grand débarras et d’un WC.
Une cave en sous-sol, accessible directement depuis le local, complète ce bien.
Une véranda ainsi qu’un jardin en jouissance privative viennent parfaire l’ensemble.
JARDIN PRIVATIF – VÉRANDA – EMPLACEMENT RECHERCHÉ
Voir plus

Référence: 690
Barème des honoraires
DPE
A
B
C
D
E
F
G
GES
A
B
C
D
E
F
G
Appartement à PARIS-16E
Appartement à PARIS-16E
Appartement à PARIS-16E
Appartement à PARIS-16E
Appartement à PARIS-16E
Appartement à PARIS-16E
Appartement à PARIS-16E
Appartement à PARIS-16E
Appartement à PARIS-16E
Appartement à PARIS-16E
Géorisques

Les informations sur les risques auxquels ce bien est exposé sont disponibles sur le site Géorisques : www.georisques.gouv.fr

Ce site est protégé par hCaptcha Politique de confidentialité et Conditions d’utilisation s’appliquent.