Bénéficiez des services de nos partenaires locaux soigneusement sélectionnés
pour vous accompagner dans votre parcours d'achat immobilier

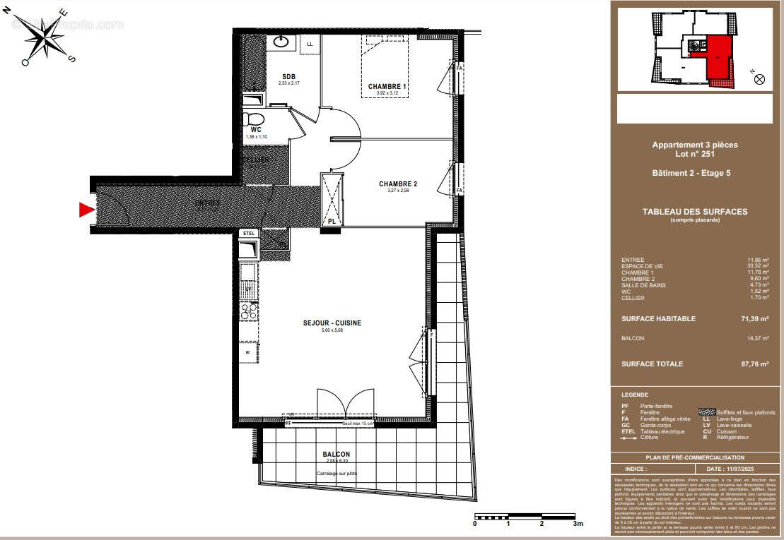
À vendre - grand t3 avec balcon exposé sud-ouest - thonon-les-bains

— Thonon-Les-Bains 74200 —
324 600 €
71 m²
3 pièces
parkingascenseur

Nos partenaires locaux
OFFRE DU MOMENT : FRAIS DE NOTAIRES OFFERTS !! A vendre, dans une nouvelle résidence à taille humaine, à proximité du centre ville de Thonon-Les-Bains, grand T3 d'une surface habitable de 71.39 m² , situé au 5ème étage. Il se compose d'une entrée avec un cellier, d'un spacieux séjour/cuisine de 30.32 m² ouvert sur un balcon de 16.37 m² exposé Sud-Ouest, idéale pour profiter pleinement de la lumière naturelle tout au long de la journée, de deux belles chambres, et d'une salle de bains et d'un WC séparé. Une place de parking en sous-sol est comprise dans le prix. Cette nouvelle résidence aux lignes contemporaines et soignées s'organise autour d'un agréable jardin paysager, offrant un cadre de vie familial et verdoyant. Leur architecture moderne, au style intemporel, s'appuie sur des matériaux durables, gage de qualité et de pérennité. (photos non contractuelles). D'autres lots restent disponibles à la vente sur ce programme. Votre agence IMMO3CONCEPT vous propose + de 1000 lots à vendre dans le Genevois, Chablais, Pays Rochois, Pays de Gex et Vallée du Giffre. Contactez-nous ou consultez notre Site Internet. Carine BOSSON (EI) Agent Commercial - Numéro RSAC : 884141946 - THONON-LES-BAINS.
Voir plus

Barème des honoraires

Prêt immobilier

Vous souhaitez connaître votre capacité d’emprunt et trouver le meilleur crédit immobilier ?
Réaliser une simulation gratuite

Appartement à THONON-LES-BAINS
Appartement à THONON-LES-BAINS
Appartement à THONON-LES-BAINS
Ce site est protégé par reCAPTCHA la Politique de confidentialité et les Conditions d’utilisation de Google s’appliquent.
Obtenir un prêt immobilier au meilleur taux ?

En poursuivant votre navigation sans modifier vos paramètres, vous acceptez l'utilisation de cookies susceptibles de réaliser des statistiques de visite. Cliquez ici pour plus d'informations